Перейти к контенту
Подбор и сравнение проектов домов от застройщиков Московской области
Подборщик домов
Калькулятор сметы
Калькулятор площади
Форум
Блог
Главная
›
Каталог проектов
›
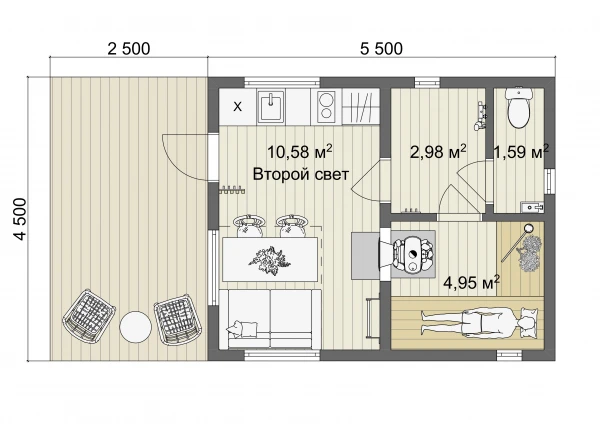
Каркасная баня «КБ-56
Каркасная баня «КБ-56
Застройщик: БаниКа
48.0 м²
1 / 3
🏠
48.0 м²
🧱
Каркас
Похожие проекты
Похожие по цене
Похожие по площади
Проект дома Новатор
2 этаж
от 2 500 000 ₽
→
Каркасный дом 6x12 Проект "Кахолонг"
1 санузл. · 1 этаж
от 2 506 000 ₽
→
Каркасный дом по акции! Все под ключ: проект дома + фундамент + строительство + утепление + отделка + гарантия 5 лет
2 спальн. · 1 санузл. · 1 этаж
от 2 507 000 ₽
→
Строительство каркасного дома 8х7 "Сегежа" под ключ
2 спальн. · 1 санузл. · 1 этаж
от 2 471 000 ₽
→
Каркасная баня «КБ-35
от 2 295 000 ₽
→
Каркасный дом «Парголово I
от 4 210 000 ₽
→
На сайт застройщика