Перейти к контенту
Подбор и сравнение проектов домов от застройщиков Московской области
Подборщик домов
Калькулятор сметы
Калькулятор площади
Форум
Блог
Главная
›
Каталог проектов
›
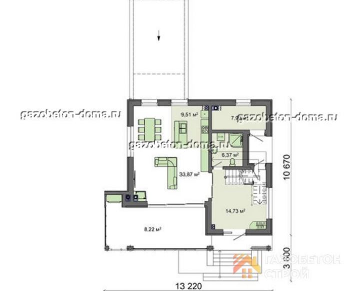
Дом из кирпича Проект КД-11
Дом из кирпича Проект КД-11
Застройщик: Газобетон Строй
232.0 м²
1 / 3
🏠
232.0 м²
🛏
3 спален
🚿
2 санузл.
📐
2 этаж
🧱
Кирпич
Похожие проекты
Похожие по цене
Похожие по площади
Дом из кирпича Проект КД-1
3 спальн. · 2 санузл.
от 420 000 ₽
→
Дом из кирпича Проект КД-10
3 спальн. · 2 санузл.
от 420 000 ₽
→
Дом из кирпича Проект КД-12
3 спальн. · 2 санузл.
от 420 000 ₽
→
Проект двухэтажный 11,5х12м № 346
2 этаж
от 9 902 950 ₽
→
Проект дома 11,5х12м № 346
2 этаж
от 9 902 950 ₽
→
Дом по проекту «ЗС 507-22» - Золотое Сечение
4 спальн. · 2 санузл.
от 29 000 000 ₽
→
На сайт застройщика