Перейти к контенту
Подбор и сравнение проектов домов от застройщиков Московской области
Подборщик домов
Калькулятор сметы
Калькулятор площади
Форум
Блог
Главная
›
Каталог проектов
›
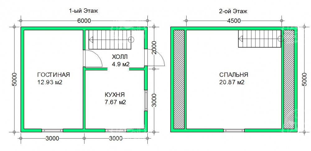
Каркасный дом 5x6 Проект "Гематит"
Каркасный дом 5x6 Проект "Гематит"
Застройщик: Каркасные дома RU
52.5 м²
1 / 2
🏠
52.5 м²
🛏
1 спален
📐
1 этаж
🧱
Каркас
Похожие проекты
Похожие по цене
Похожие по площади
Каркасный дом 7.5x7 Проект "Раухтопаз"
1 санузл. · 1 этаж
от 1 571 000 ₽
→
Проект T-046-1S
2 этаж
от 1 566 150 ₽
→
Проект C-080-1S
1 этаж
от 1 587 820 ₽
→
Каркасный дом 7.5x7 Проект "Раухтопаз"
1 санузл. · 1 этаж
от 1 571 000 ₽
→
Проект E-053-1D
1 этаж
от 7 875 000 ₽
→
Проект каркасного дома КП-75
1 этаж
от 5 065 000 ₽
→
На сайт застройщика