Перейти к контенту
Подбор и сравнение проектов домов от застройщиков Московской области
Подборщик домов
Калькулятор сметы
Калькулятор площади
Форум
Блог
Главная
›
Каталог проектов
›
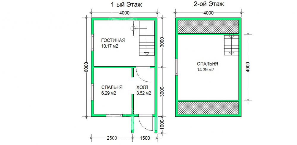
Каркасный дом 6x4 Проект "Амазонит"
Каркасный дом 6x4 Проект "Амазонит"
Застройщик: Каркасные дома RU
41.5 м²
1 / 2
🏠
41.5 м²
🛏
2 спален
🧱
Каркас
Похожие проекты
Похожие по цене
Похожие по площади
Строительство каркасного дома 7х5 "Артик" под ключ
3 спальн. · 1 санузл. · 2 этаж
от 1 894 000 ₽
→
Витязь 3
3 спальн. · 1 санузл. · 1 этаж
от 1 909 000 ₽
→
Дом «Трофимов» 6х8 м
1 спальн. · 1 этаж
от 1 910 000 ₽
→
Лесник 1 (7x7)
2 спальн. · 1 санузл. · 1 этаж
от 3 705 000 ₽
→
Витязь 3
3 спальн. · 1 санузл. · 1 этаж
от 1 909 000 ₽
→
Проект H-041-1P
1 этаж
от 2 938 600 ₽
→
На сайт застройщика