Перейти к контенту
Подбор и сравнение проектов домов от застройщиков Московской области
Подборщик домов
Калькулятор сметы
Калькулятор площади
Форум
Блог
Главная
›
Каталог проектов
›
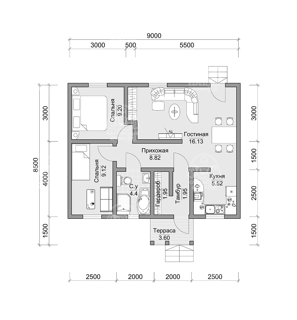
Каркасный дом 8.5x9 Проект "Жемчуг"
Каркасный дом 8.5x9 Проект "Жемчуг"
Застройщик: Каркасные дома RU
66.0 м²
1 / 2
🏠
66.0 м²
🛏
2 спален
🚿
1 санузл.
📐
1 этаж
🧱
Каркас
Похожие проекты
Похожие по цене
Похожие по площади
Проект дома Станислав Шале
2 этаж
от 1 715 000 ₽
→
Каркасный дом 7.5x8 Проект "Хризопраз"
1 спальн. · 1 санузл. · 1 этаж
от 1 708 000 ₽
→
Проект D-088-1S
2 этаж
от 1 725 720 ₽
→
Проект одноэтажного дома "Сатурн" из бруса
2 спальн. · 2 этаж
от 5 758 437 ₽
→
Проект одноэтажного каркасного дома "Протей"
2 спальн. · 2 этаж
от 5 212 063 ₽
→
Каркасная баня «КБ-4
от 3 430 000 ₽
→
На сайт застройщика