Перейти к контенту
Подбор и сравнение проектов домов от застройщиков Московской области
Подборщик домов
Калькулятор сметы
Калькулятор площади
Форум
Блог
Главная
›
Каталог проектов
›
Проект каркасного дома КП-241
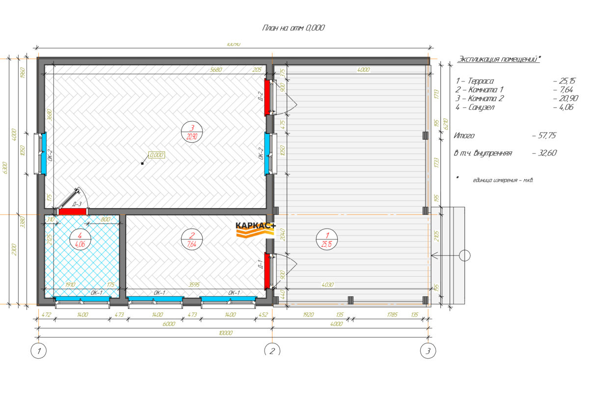
Проект каркасного дома КП-241
Застройщик: КАРКАС+
57.75 м²
1 / 2
🏠
57.75 м²
📐
1 этаж
🧱
Каркас
Похожие проекты
Похожие по цене
Похожие по площади
Проект К-49 7 на 8, площадью 105 за 3 549 000 руб
3 спальн. · 2 этаж
от 3 549 000 ₽
→
Проект дома AS-2212
1 этаж
от 3 546 000 ₽
→
Богатырь ЛК 2
5 спальн. · 2 санузл. · 2 этаж
от 3 542 000 ₽
→
Проект N-058-1P
1 этаж
от 4 032 000 ₽
→
Каркасная баня «КБ-62
от 3 890 000 ₽
→
Дом «Венедиктов» 8х8 м
2 спальн. · 1 этаж
от 2 440 000 ₽
→
На сайт застройщика