Перейти к контенту
Подбор и сравнение проектов домов от застройщиков Московской области
Подборщик домов
Калькулятор сметы
Калькулятор площади
Форум
Блог
Главная
›
Каталог проектов
›
Проект C-057-1S
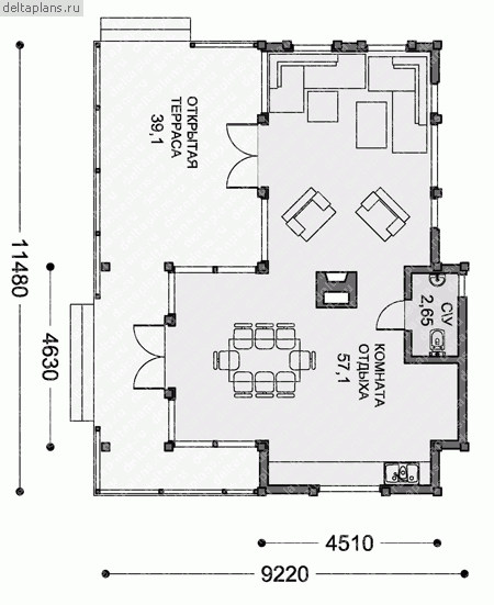
Проект C-057-1S
Застройщик: Юникс-Строй
57.1 м²
1 / 2
🏠
57.1 м²
📐
1 этаж
🧱
Каркас
Похожие проекты
Похожие по цене
Похожие по площади
Проект дома Классика
2 этаж
от 1 125 000 ₽
→
Проект дома Виктория
2 этаж
от 1 149 000 ₽
→
Проект C-054-1S
1 этаж
от 1 074 635 ₽
→
Мечта 6
4 этаж
от 3 439 801 ₽
→
Проект одноэтажного дома "Пыжик-М1 (одноэтажный) " из бруса
2 спальн. · 1 этаж
от 5 496 188 ₽
→
Строительство каркасного дома 8х8 "Альбион" под ключ
3 спальн. · 1 санузл. · 1 этаж
от 2 735 000 ₽
→
На сайт застройщика