Перейти к контенту
Подбор и сравнение проектов домов от застройщиков Московской области
Подборщик домов
Калькулятор сметы
Калькулятор площади
Форум
Блог
Главная
›
Каталог проектов
›
Проект U-050-1P
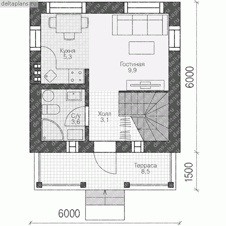
Проект U-050-1P
Застройщик: Юникс-Строй
43.48 м²
1 / 3
🏠
43.48 м²
📐
2 этаж
🧱
Пеноблок
Похожие проекты
Похожие по цене
Похожие по площади
Проект двухэтажного коттеджа "Свеча-3" из газобетона
1 спальн. · 3 этаж
от 3 056 000 ₽
→
ПД - 123 - Строительство домов из Каркаса, СИП, Бруса под ключ
4 спальн. · 2 санузл. · 2 этаж
от 3 030 000 ₽
→
Проект дома«ТОПДОМ 1.55»
1 этаж
от 3 030 000 ₽
→
Охотник 3
3 спальн. · 1 санузл. · 1 этаж
от 2 023 000 ₽
→
Проект P-044-1K
1 этаж
от 3 591 600 ₽
→
Охотник (7x8)
2 спальн. · 1 санузл. · 1 этаж
от 3 469 000 ₽
→
На сайт застройщика