Перейти к контенту
Подбор и сравнение проектов домов от застройщиков Московской области
Подборщик домов
Калькулятор сметы
Калькулятор площади
Форум
Блог
Главная
›
Каталог проектов
›
Проект U-052-1K
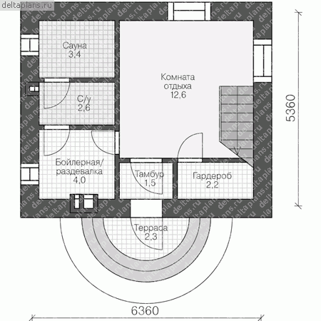
Проект U-052-1K
Застройщик: Юникс-Строй
52.0 м²
1 / 3
🏠
52.0 м²
🚿
1 санузл.
📐
2 этаж
🧱
Кирпич
Похожие проекты
Похожие по цене
Похожие по площади
Строительство каркасного дома 8х7 "Валенсия" под ключ
4 спальн. · 2 санузл. · 2 этаж
от 4 262 000 ₽
→
Дом «Смирнов» 8х12,5 м
2 спальн. · 1 этаж
от 4 260 000 ₽
→
Лесник 5 (7x9)
2 спальн. · 1 санузл. · 1 этаж
от 4 270 000 ₽
→
Каркасная баня «КБ-48
от 3 735 000 ₽
→
Проект C-052-1S
1 этаж
от 1 025 385 ₽
→
Проект C-052-2S
1 этаж
от 1 025 385 ₽
→
На сайт застройщика