Перейти к контенту
Подбор и сравнение проектов домов от застройщиков Московской области
Подборщик домов
Калькулятор сметы
Калькулятор площади
Форум
Блог
Главная
›
Каталог проектов
›
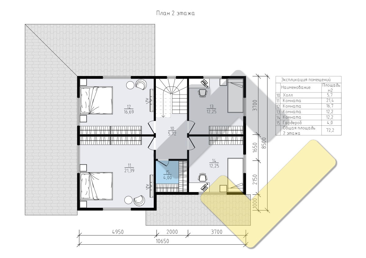
Строительство каркасного дома 10,6х8,5 "Викинг-2" под ключ
Строительство каркасного дома 10,6х8,5 "Викинг-2" под ключ
Застройщик: АВИ Каркас
144.0 м²
1 / 3
🏠
144.0 м²
🛏
6 спален
🚿
1 санузл.
📐
2 этаж
🧱
Каркас
Похожие проекты
Похожие по цене
Похожие по площади
Канадец 12
4 спальн. · 2 санузл. · 2 этаж
от 6 919 800 ₽
→
Канадец 14
4 спальн. · 2 санузл. · 2 этаж
от 6 919 800 ₽
→
Проект дома AS-1018
2 этаж
от 6 936 400 ₽
→
Дом по проекту «ЗС 239-25» - Золотое Сечение
3 спальн. · 2 санузл.
от 18 000 000 ₽
→
Эльбрус (8x9)
4 спальн. · 2 санузл. · 2 этаж
от 6 979 000 ₽
→
ПД - 144-2 - Строительство домов из Каркаса, СИП, Бруса под ключ
2 спальн. · 1 санузл. · 2 этаж
от 3 260 000 ₽
→
На сайт застройщика