Перейти к контенту
Подбор и сравнение проектов домов от застройщиков Московской области
Подборщик домов
Калькулятор сметы
Калькулятор площади
Форум
Блог
Главная
›
Каталог проектов
›
Каркасный дом «Парголово
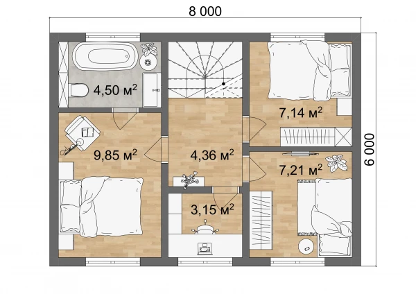
Каркасный дом «Парголово
Застройщик: БаниКа
96.0 м²
1 / 3
🏠
96.0 м²
🧱
Каркас
Похожие проекты
Похожие по цене
Похожие по площади
Каркасный дом «Токсово-1
от 5 045 000 ₽
→
Каркасный дом «Энколово
от 5 045 000 ₽
→
Проект дома «Лестер»
1 спальн. · 2 этаж
от 5 040 700 ₽
→
Каркасный дом «Токсово-1
от 5 045 000 ₽
→
Каркасный дом (ШОУРУМ Баркас) 96 м² — г. Балашиха, мкр-н Купавна, Московская область
1 этаж
от 2 880 000 ₽
→
Дом из газобетона Проект ГБ-205
3 спальн. · 2 санузл. · 1 этаж
от 4 192 000 ₽
→
На сайт застройщика