Перейти к контенту
Подбор и сравнение проектов домов от застройщиков Московской области
Подборщик домов
Калькулятор сметы
Калькулятор площади
Форум
Блог
Главная
›
Каталог проектов
›
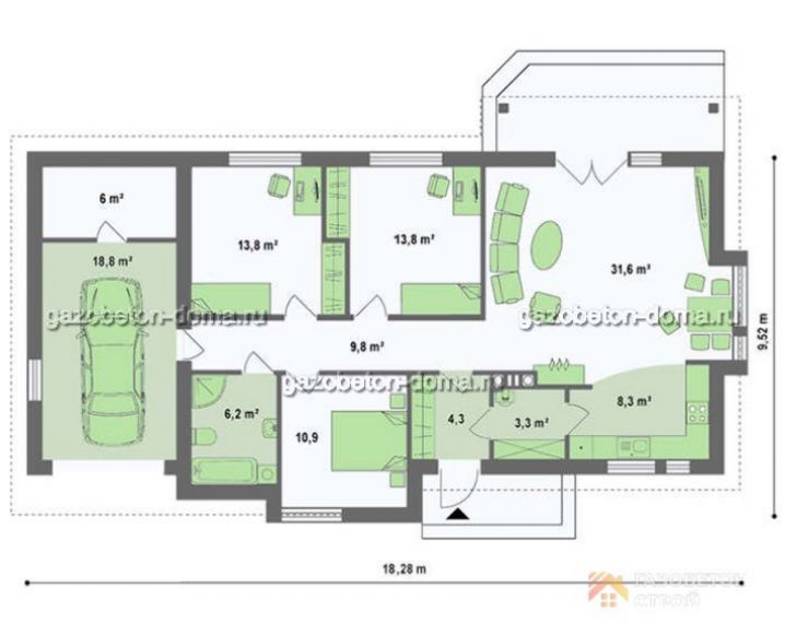
Дом из газобетона Проект ГБ-210
Дом из газобетона Проект ГБ-210
Застройщик: Газобетон Строй
100.0 м²
1 / 2
🏠
100.0 м²
🛏
3 спален
🚿
2 санузл.
📐
1 этаж
🧱
Газобетон
Похожие проекты
Похожие по цене
Похожие по площади
Проект каркасного дома КП-45А
2 спальн. · 1 этаж
от 5 150 000 ₽
→
Проект К-67 10 на 8, площадью 153 за 5 151 000 руб
3 спальн. · 2 этаж
от 5 151 000 ₽
→
Проект К-134 10 на 10, площадью 184 за 6 243 000 руб
4 спальн. · 2 этаж
от 5 152 000 ₽
→
Проект одноэтажного дома "Чиполлино" из бруса
1 спальн. · 2 этаж
от 7 543 632 ₽
→
Проект одноэтажного каркасного дома "Диш2"
4 спальн. · 2 этаж
от 7 315 176 ₽
→
Строительство каркасного дома 8х7 "Валенсия" под ключ
4 спальн. · 2 санузл. · 2 этаж
от 4 262 000 ₽
→
На сайт застройщика