Перейти к контенту
Подбор и сравнение проектов домов от застройщиков Московской области
Подборщик домов
Калькулятор сметы
Калькулятор площади
Форум
Блог
Главная
›
Каталог проектов
›
Дом из газобетона Проект ГБ-228
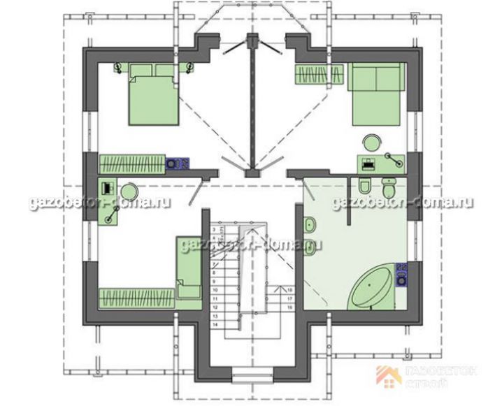
Дом из газобетона Проект ГБ-228
Застройщик: Газобетон Строй
220.0 м²
1 / 3
🏠
220.0 м²
🛏
3 спален
🚿
2 санузл.
📐
2 этаж
🧱
Газобетон
Похожие проекты
Похожие по цене
Похожие по площади
Дом из газобетона Проект ГБ-207
3 спальн. · 2 санузл. · 2 этаж
от 7 219 000 ₽
→
Дом из газобетона Проект ГБ-208
3 спальн. · 2 санузл.
от 7 219 000 ₽
→
Проект дома «Блэнкет»
3 спальн. · 1 этаж
от 7 224 000 ₽
→
Дом по проекту «ЗС 733-20» - Золотое Сечение
3 спальн. · 2 санузл.
от 27 500 000 ₽
→
Проект К-120 11 на 10, площадью 220 за 7 342 500 руб
4 спальн. · 2 этаж
от 7 342 500 ₽
→
Проект К-120 11 на 10, площадью 220 за 7 342 500 руб
4 спальн. · 2 этаж
от 6 160 000 ₽
→
На сайт застройщика