Перейти к контенту
Подбор и сравнение проектов домов от застройщиков Московской области
Подборщик домов
Калькулятор сметы
Калькулятор площади
Форум
Блог
Главная
›
Каталог проектов
›
Дом из газобетона Проект ГБ-245
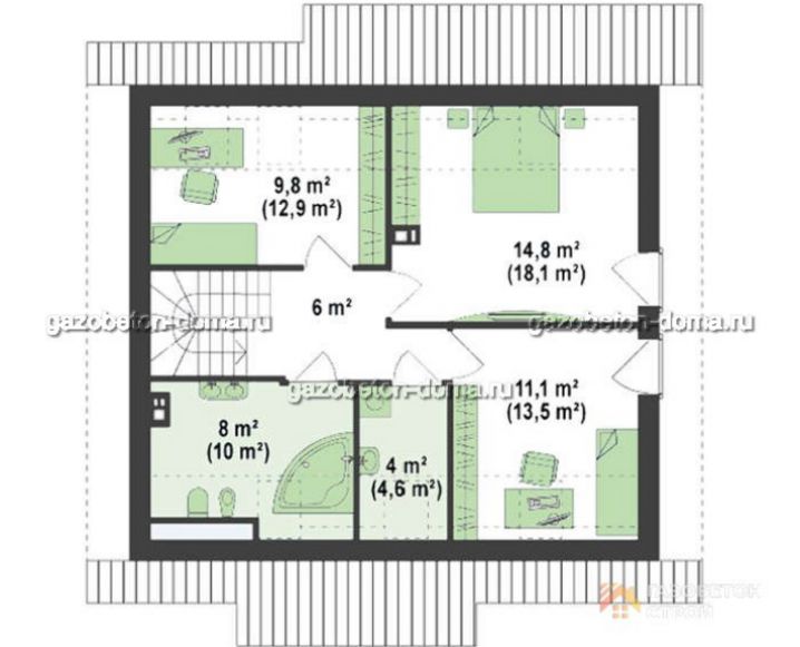
Дом из газобетона Проект ГБ-245
Застройщик: Газобетон Строй
110.0 м²
1 / 3
🏠
110.0 м²
🛏
3 спален
🚿
2 санузл.
📐
2 этаж
🧱
Газобетон
Похожие проекты
Похожие по цене
Похожие по площади
Уэльс 21
4 спальн. · 2 санузл. · 2 этаж
от 4 639 800 ₽
→
Дом из оцилиндрованного бревна «Покров» | ЭкоТех
2 спальн. · 1 санузл. · 1 этаж
от 4 640 000 ₽
→
Каркасный дом С-111 КР «Хюгге»
2 спальн. · 1 санузл. · 2 этаж
от 4 632 000 ₽
→
Каркасный дом «Колпино
от 10 095 000 ₽
→
Дом из газобетона Проект ГБ-191
3 спальн. · 2 санузл. · 2 этаж
от 4 809 000 ₽
→
Дом из газобетона Проект ГБ-244
3 спальн. · 2 санузл. · 1 этаж
от 4 163 000 ₽
→
На сайт застройщика