Перейти к контенту
Подбор и сравнение проектов домов от застройщиков Московской области
Подборщик домов
Калькулятор сметы
Калькулятор площади
Форум
Блог
Главная
›
Каталог проектов
›
Дом из кирпича Проект КД-6
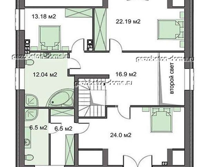
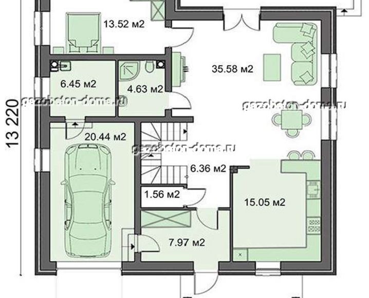
Дом из кирпича Проект КД-6
Застройщик: Газобетон Строй
222.0 м²
1 / 3
🏠
222.0 м²
🛏
3 спален
🚿
2 санузл.
🧱
Кирпич
Похожие проекты
Похожие по цене
Похожие по площади
Дом из кирпича Проект КД-1
3 спальн. · 2 санузл.
от 420 000 ₽
→
Дом из кирпича Проект КД-10
3 спальн. · 2 санузл.
от 420 000 ₽
→
Дом из кирпича Проект КД-11
3 спальн. · 2 санузл. · 2 этаж
от 420 000 ₽
→
Проект двухэтажного дома "Марсель" из бруса
5 спальн. · 2 этаж
от 15 369 495 ₽
→
Проект двухэтажного коттеджа "Дачия" из газобетона
2 спальн. · 2 этаж
от 14 915 000 ₽
→
Проект К-89 14 на 8, площадью 222 за 7 422 000 руб
3 спальн. · 2 этаж
от 7 422 000 ₽
→
На сайт застройщика