Перейти к контенту
Подбор и сравнение проектов домов от застройщиков Московской области
Подборщик домов
Калькулятор сметы
Калькулятор площади
Форум
Блог
Главная
›
Каталог проектов
›
Дом из кирпича Проект КД-9
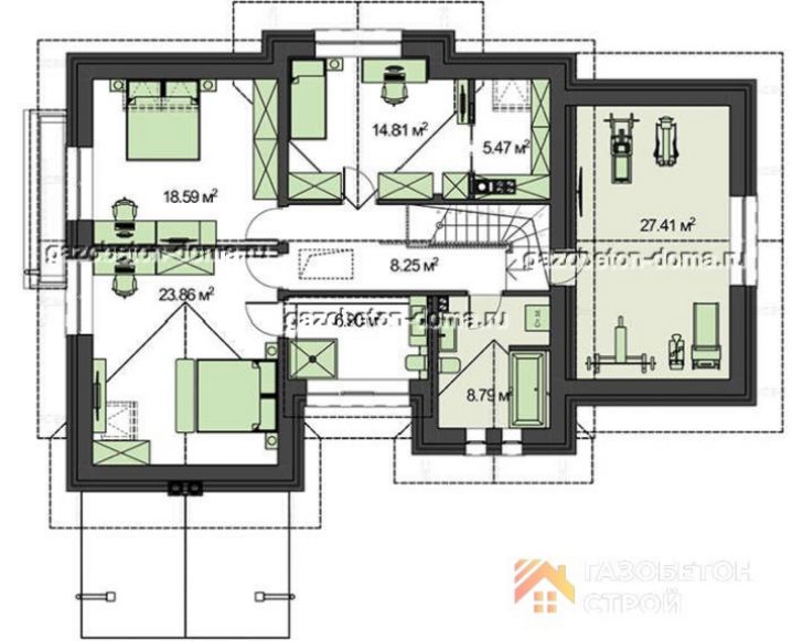
Дом из кирпича Проект КД-9
Застройщик: Газобетон Строй
243.0 м²
1 / 3
🏠
243.0 м²
🛏
3 спален
🚿
2 санузл.
🧱
Кирпич
Похожие проекты
Похожие по цене
Похожие по площади
Дом из кирпича Проект КД-1
3 спальн. · 2 санузл.
от 420 000 ₽
→
Дом из кирпича Проект КД-10
3 спальн. · 2 санузл.
от 420 000 ₽
→
Дом из кирпича Проект КД-11
3 спальн. · 2 санузл. · 2 этаж
от 420 000 ₽
→
Дом Лазаревское из газобетона: заказать в Москве по низкой цене
3 спальн. · 2 санузл. · 2 этаж
от 12 680 000 ₽
→
Дом Лазаревское из кирпича: заказать в Москве по низкой цене
3 спальн. · 2 санузл. · 2 этаж
от 12 680 000 ₽
→
Дом по проекту «ЗС 25-16» - Золотое Сечение
4 спальн. · 3 санузл.
от 30 375 000 ₽
→
На сайт застройщика