Проект двухэтажного дома с террасой и балконом Olimp-146 м² из газоблока — Домострой
Застройщик: Домострой-МСК
146.0 м²





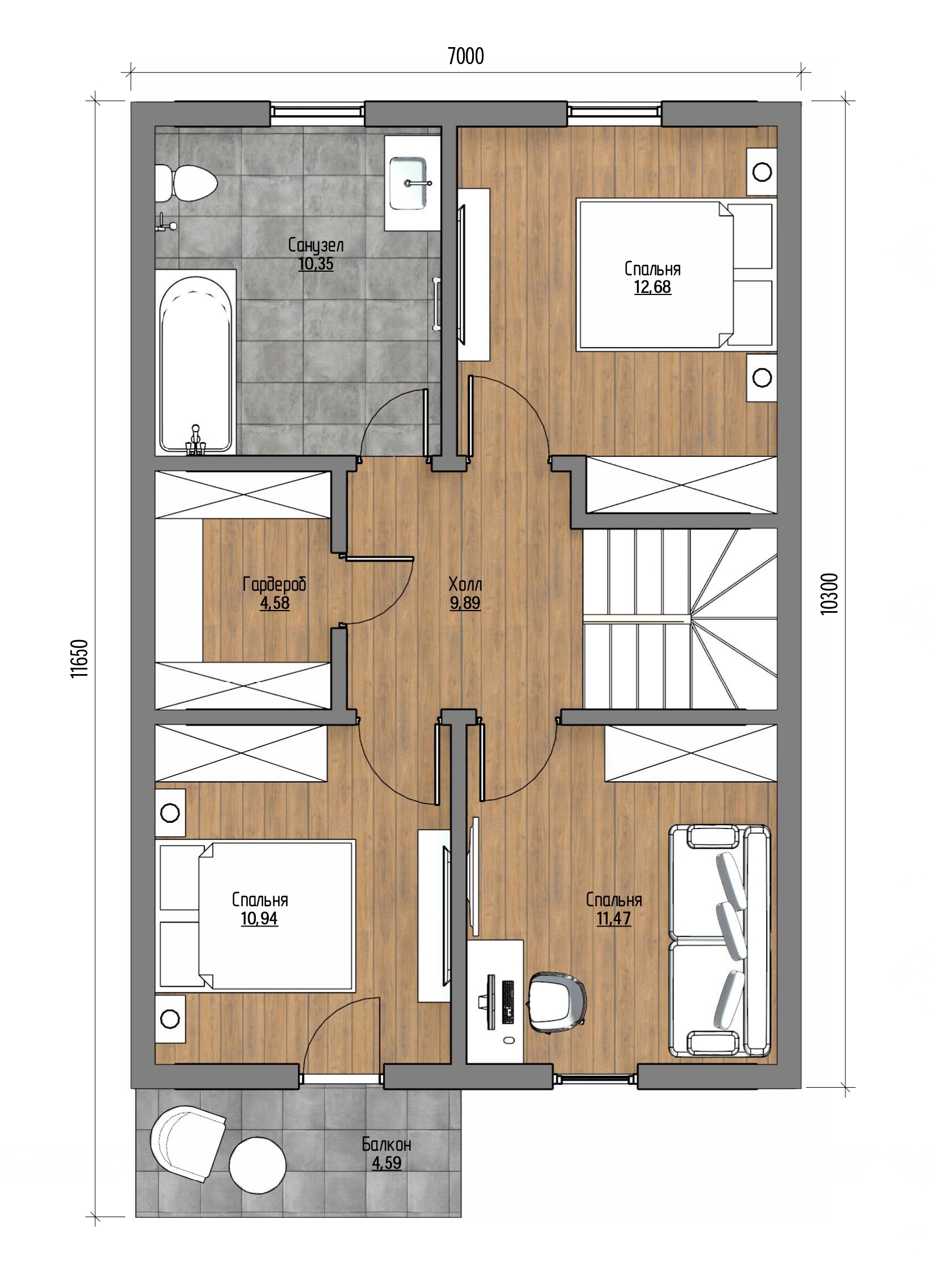
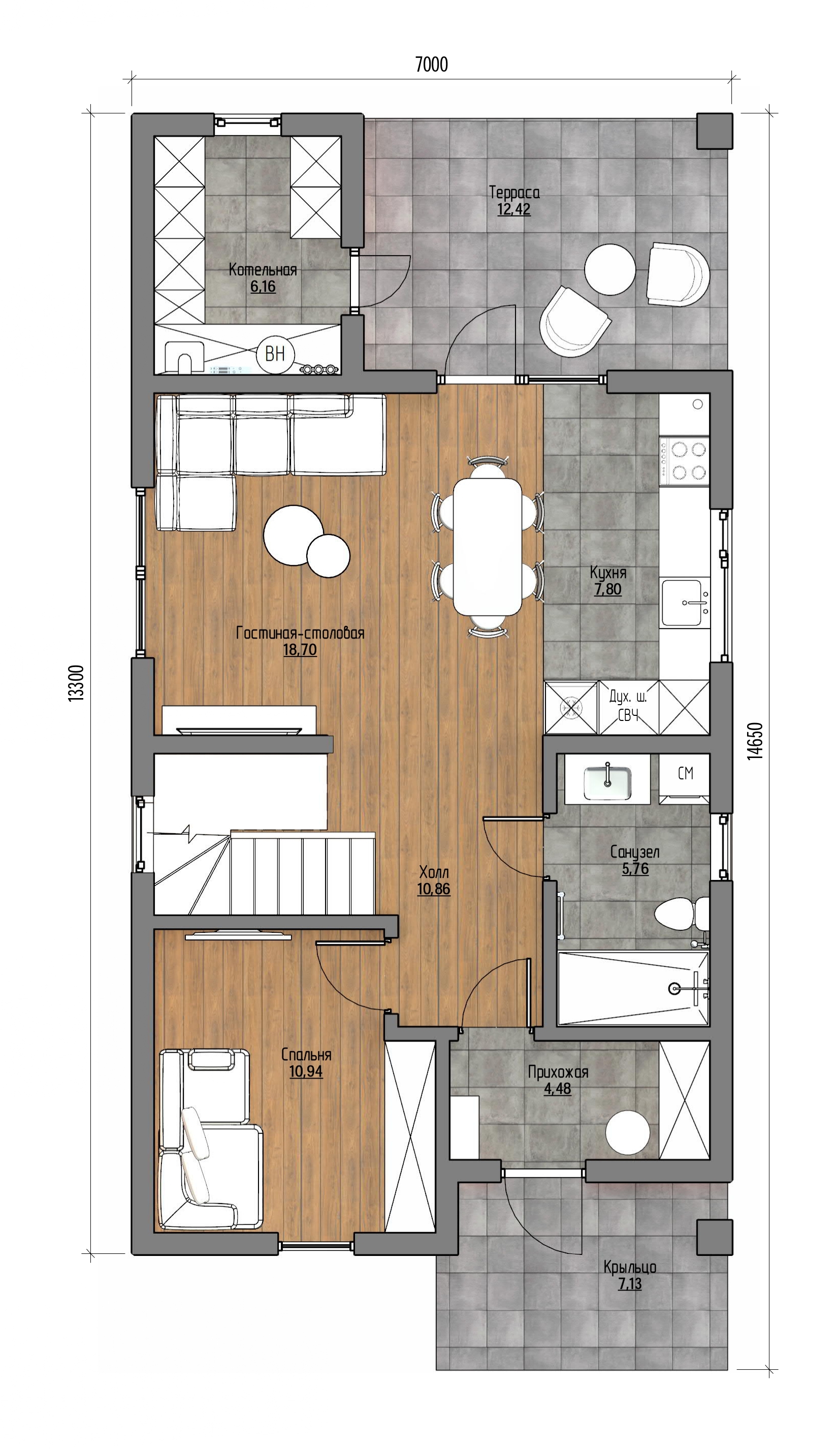
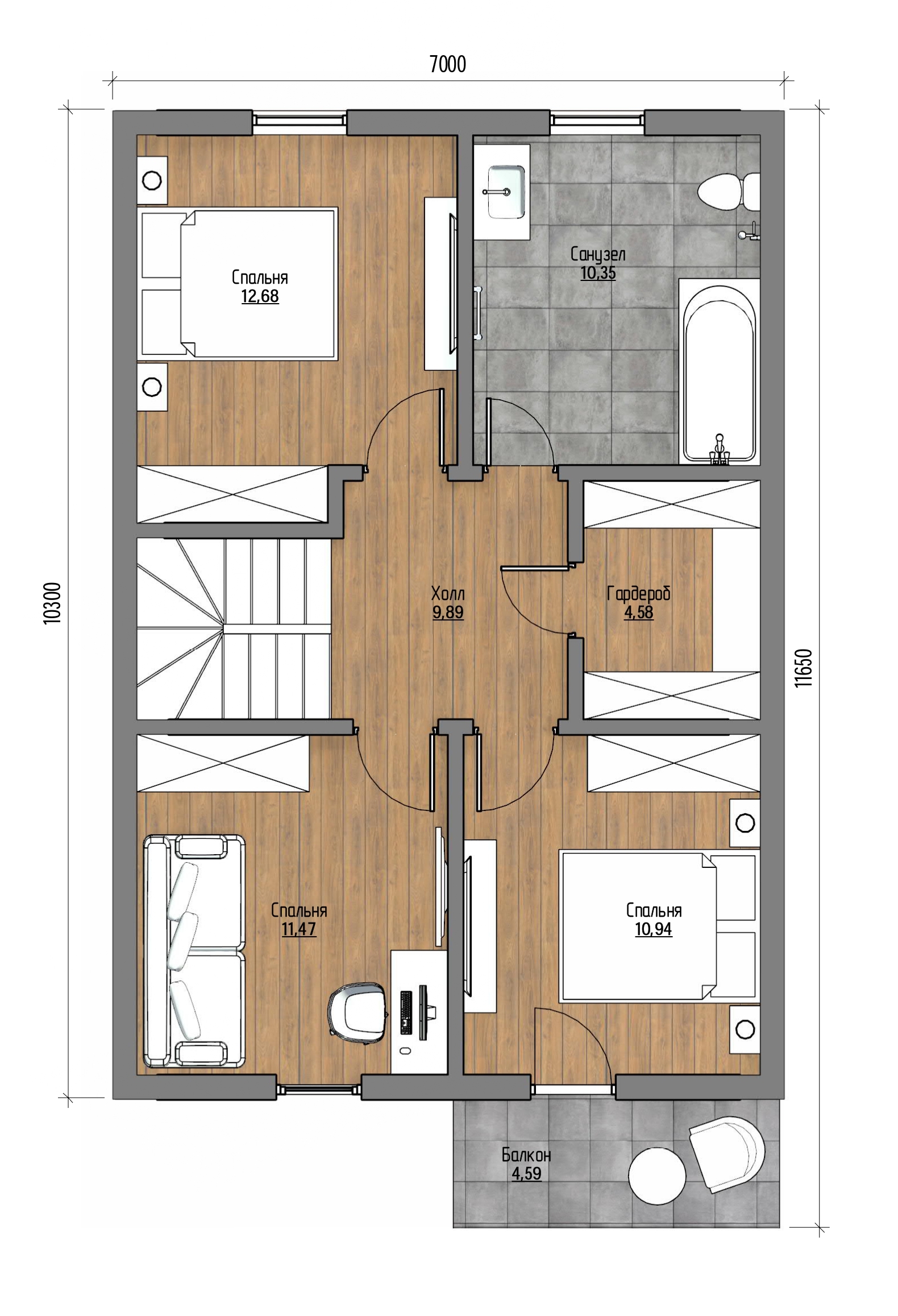
146.0 м²5 спален2 санузл.2 этажГазобетон