Проект двухэтажного дома с террасой и 2 балконами Modern-150 м² из газоблока — Домострой
Застройщик: Домострой-МСК
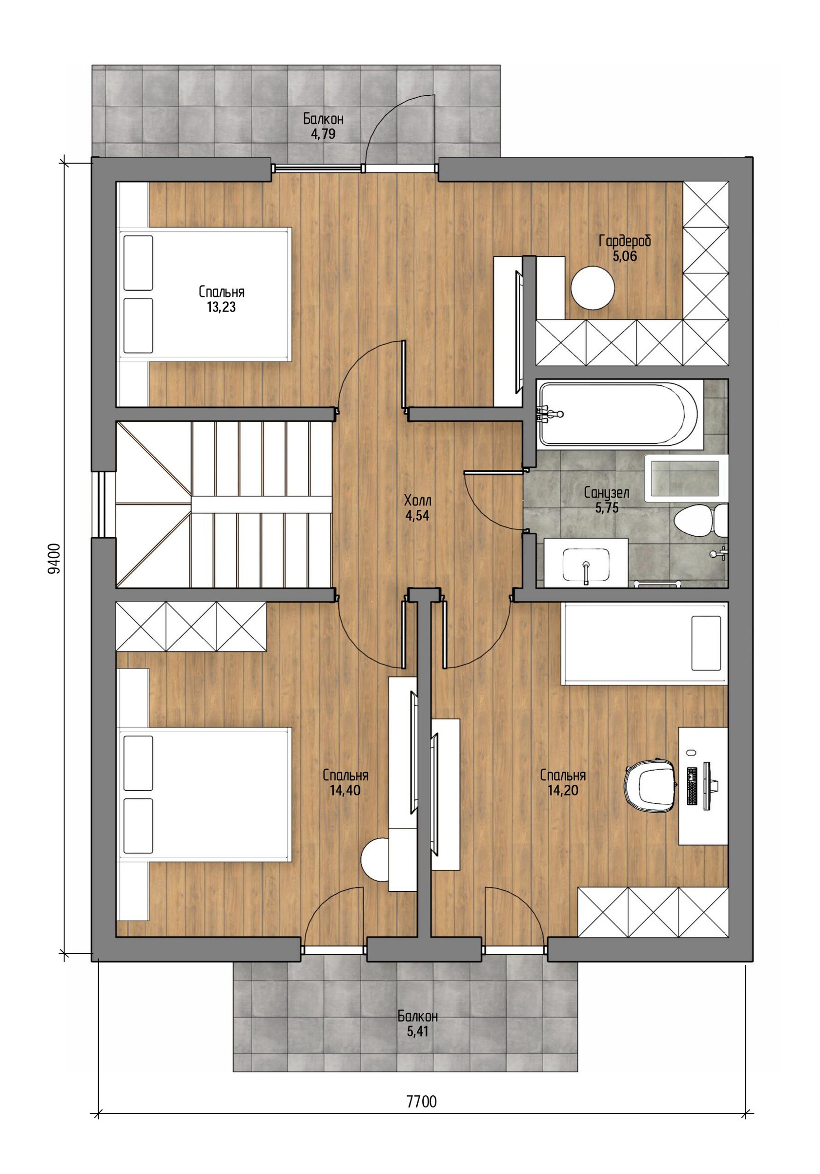
150.0 м²





150.0 м²5 спален2 санузл.2 этажГазобетон