Перейти к контенту
Подбор и сравнение проектов домов от застройщиков Московской области
Подборщик домов
Калькулятор сметы
Калькулятор площади
Форум
Блог
Главная
›
Каталог проектов
›
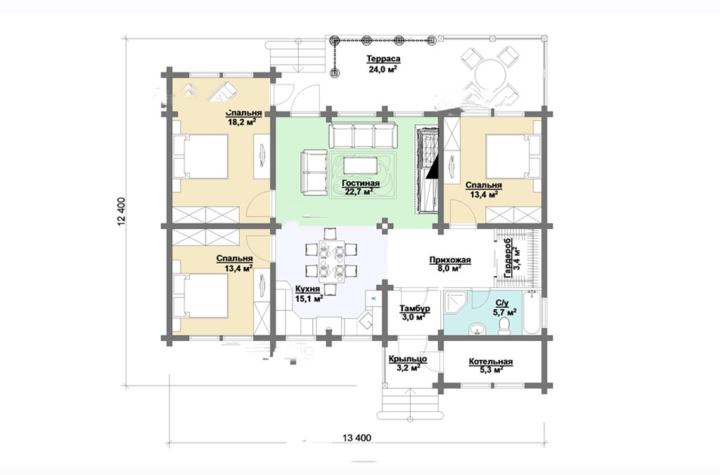
Одноэтажный дом 3 спальни №378
Одноэтажный дом 3 спальни №378
Застройщик: ДСК Норд
146.0 м²
1 / 2
🏠
146.0 м²
📐
1 этаж
🧱
Клееный брус
Похожие проекты
Похожие по цене
Похожие по площади
Проект дома из газоблоков 17х14 ГББ-167: цена 9160000 руб.
5 спальн. · 3 санузл. · 1 этаж
от 11 879 000 ₽
→
Проект B-170-1P
3 этаж
от 11 863 600 ₽
→
Проект одноэтажного коттеджа "Братский" из газобетона
5 спальн. · 2 этаж
от 11 881 000 ₽
→
Дом одноэтажный №378
1 этаж
от 11 799 650 ₽
→
Проект двухэтажного дома с террасой и балконом Olimp-146 м² из газоблока — Домострой
5 спальн. · 2 санузл. · 2 этаж
от 12 167 000 ₽
→
Проект К-52 11 на 7, площадью 146 за 4 923 750 руб
4 спальн. · 2 этаж
от 4 923 750 ₽
→
На сайт застройщика