Перейти к контенту
Подбор и сравнение проектов домов от застройщиков Московской области
Подборщик домов
Калькулятор сметы
Калькулятор площади
Форум
Блог
Главная
›
Каталог проектов
›
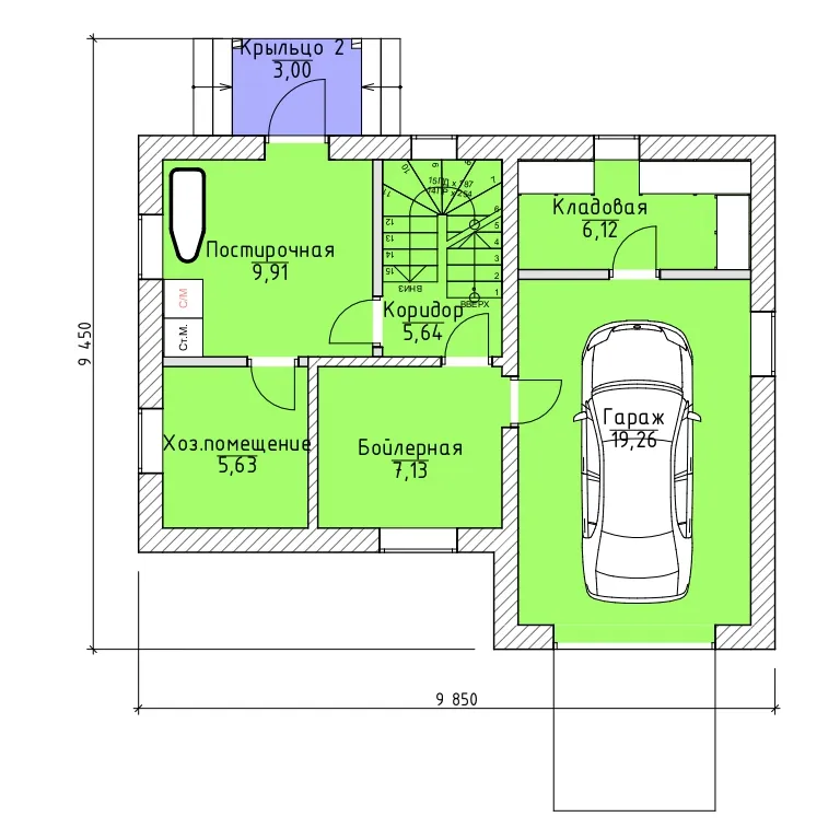
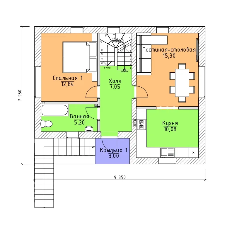
Дом по проекту «ЗС 13-17» - Золотое Сечение
Дом по проекту «ЗС 13-17» - Золотое Сечение
Застройщик: Золотое Сечение
164.0 м²
1 / 4
🏠
164.0 м²
🛏
4 спален
🚿
2 санузл.
🧱
Газобетонный блок/керамический блок/кирпич
Похожие проекты
Похожие по цене
Похожие по площади
Проект «Benz»
5 спальн. · 3 санузл.
от 20 500 000 ₽
→
Проект «Benz»
5 спальн. · 3 санузл.
от 20 500 000 ₽
→
Коттедж «Бенс» с бассейном на улице
5 спальн. · 3 санузл. · 2 этаж
от 20 500 000 ₽
→
Проект одноэтажного дома "Таремское" из бруса
2 этаж
от 12 238 305 ₽
→
Проект одноэтажного дома "Черный жемчуг" из бруса
2 спальн. · 2 этаж
от 12 472 348 ₽
→
Дом 4 спальни с террасой №369
2 этаж
от 8 999 605 ₽
→
На сайт застройщика