Перейти к контенту
Подбор и сравнение проектов домов от застройщиков Московской области
Подборщик домов
Калькулятор сметы
Калькулятор площади
Форум
Блог
Главная
›
Каталог проектов
›
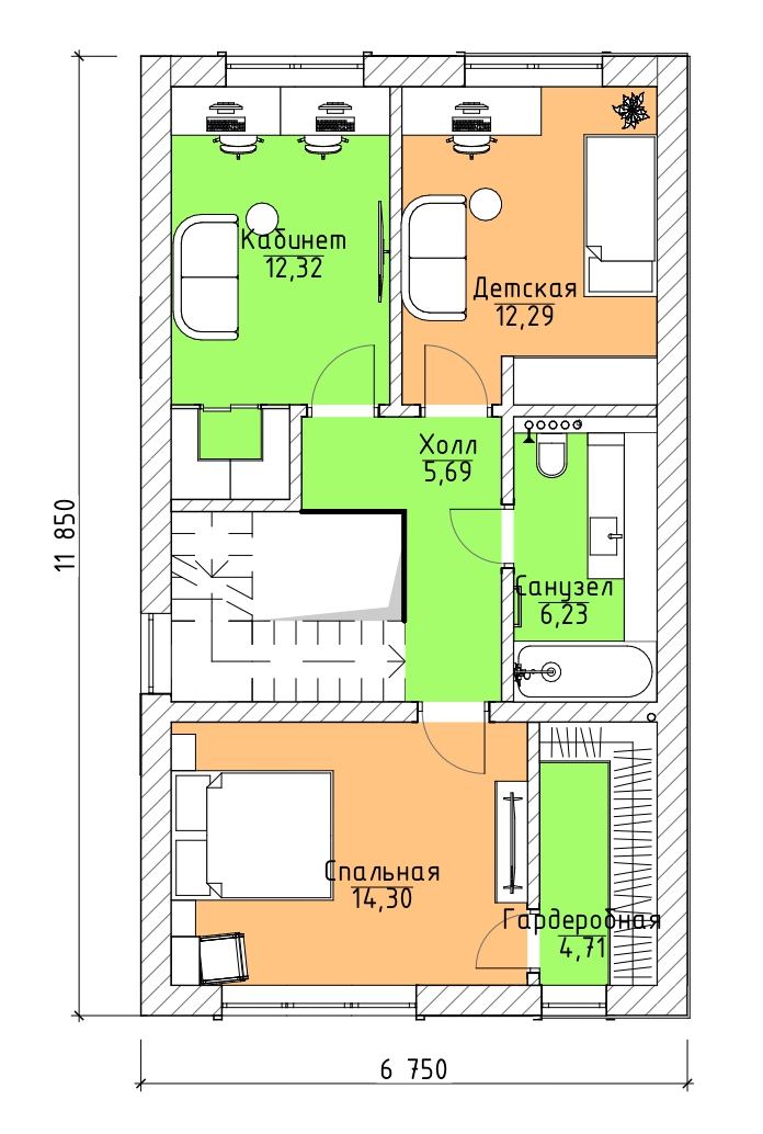
Дом по проекту «ЗС 209-22» - Золотое Сечение
Дом по проекту «ЗС 209-22» - Золотое Сечение
Застройщик: Золотое Сечение
129.0 м²
1 / 3
🏠
129.0 м²
🛏
3 спален
🚿
2 санузл.
🧱
Газобетонный блок/Керамический блок/Кирпич
Похожие проекты
Похожие по цене
Похожие по площади
Дом по проекту «ЗС 14-16» - Золотое Сечение
2 спальн. · 3 санузл.
от 16 125 000 ₽
→
Проект F-195-1K
2 санузл. · 2 этаж
от 16 124 480 ₽
→
Проект M-196-1K
2 этаж
от 16 123 660 ₽
→
Проект двухэтажного каркасного дома "Европа"
4 спальн. · 2 этаж
от 9 767 007 ₽
→
Канадец 14
4 спальн. · 2 санузл. · 2 этаж
от 6 919 800 ₽
→
Дом по проекту «ЗС 14-16» - Золотое Сечение
2 спальн. · 3 санузл.
от 16 125 000 ₽
→
На сайт застройщика