Перейти к контенту
Подбор и сравнение проектов домов от застройщиков Московской области
Подборщик домов
Калькулятор сметы
Калькулятор площади
Форум
Блог
Главная
›
Каталог проектов
›
Дом по проекту «ЗС 235-24» - Золотое Сечение
Дом по проекту «ЗС 235-24» - Золотое Сечение
Застройщик: Золотое Сечение
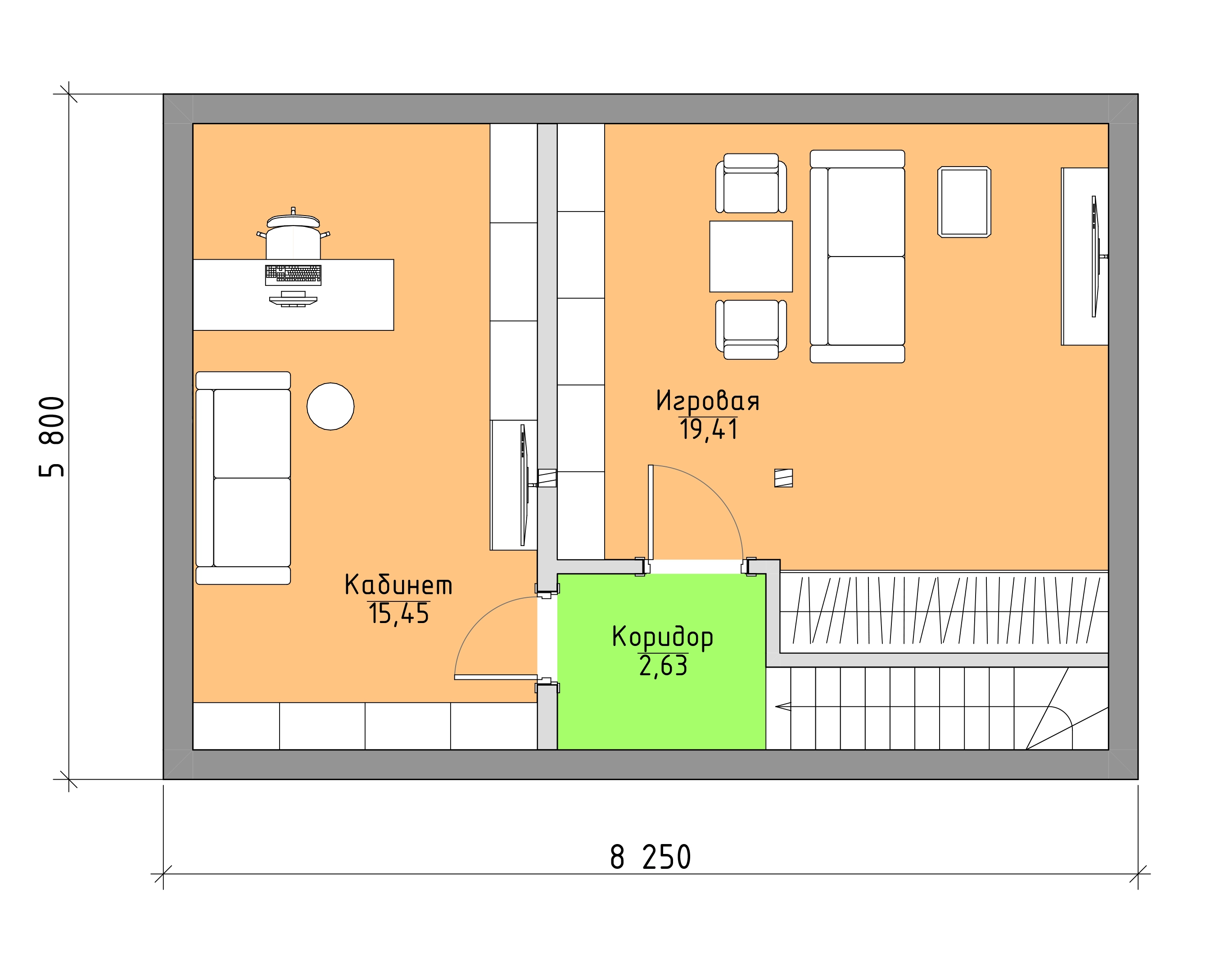
187.0 м²
1 / 3
🏠
187.0 м²
🛏
4 спален
🚿
3 санузл.
🧱
Газобетонный блок/Керамический блок/Кирпич
Похожие проекты
Похожие по цене
Похожие по площади
Дом по проекту «ЗС 353-18» - Золотое Сечение
2 спальн. · 1 санузл.
от 23 375 000 ₽
→
Проект дома W-334-1P
2 этаж
от 23 373 000 ₽
→
Проект G-285-1K
3 этаж
от 23 370 000 ₽
→
Двухэтажный дом 4 спальни №355
2 этаж
от 9 563 900 ₽
→
Двухэтажный дом 4 спальни №355
2 этаж
от 9 563 900 ₽
→
Дом по проекту «ЗС 353-18» - Золотое Сечение
2 спальн. · 1 санузл.
от 23 375 000 ₽
→
На сайт застройщика