Перейти к контенту
Подбор и сравнение проектов домов от застройщиков Московской области
Подборщик домов
Калькулятор сметы
Калькулятор площади
Форум
Блог
Главная
›
Каталог проектов
›
Дом по проекту «ЗС 243-2-18» - Золотое Сечение
Дом по проекту «ЗС 243-2-18» - Золотое Сечение
Застройщик: Золотое Сечение
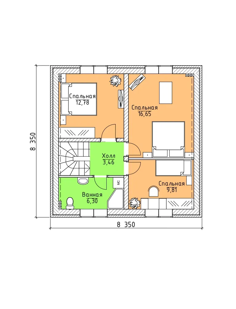
113.0 м²
1 / 3
🏠
113.0 м²
🛏
3 спален
🚿
2 санузл.
🧱
Газобетонный блок/керамический блок/кирпич
Похожие проекты
Похожие по цене
Похожие по площади
Дом по проекту «ЗС 4-22» - Золотое Сечение
2 спальн. · 1 санузл.
от 14 125 000 ₽
→
Каркасный дом «Ульяновка
от 14 130 000 ₽
→
Проект U-172-1K
2 этаж
от 14 135 160 ₽
→
Дом по проекту «ЗС 4-22» - Золотое Сечение
2 спальн. · 1 санузл.
от 14 125 000 ₽
→
Проект К-3 8 на 8, площадью 113 за 3 867 000 руб
2 спальн. · 2 этаж
от 3 867 000 ₽
→
Проект К-3 8 на 8, площадью 113 за 3 867 000 руб
2 спальн. · 2 этаж
от 3 796 800 ₽
→
На сайт застройщика