Перейти к контенту
Подбор и сравнение проектов домов от застройщиков Московской области
Подборщик домов
Калькулятор сметы
Калькулятор площади
Форум
Блог
Главная
›
Каталог проектов
›
Дом по проекту «ЗС 40-16» - Золотое Сечение
Дом по проекту «ЗС 40-16» - Золотое Сечение
Застройщик: Золотое Сечение
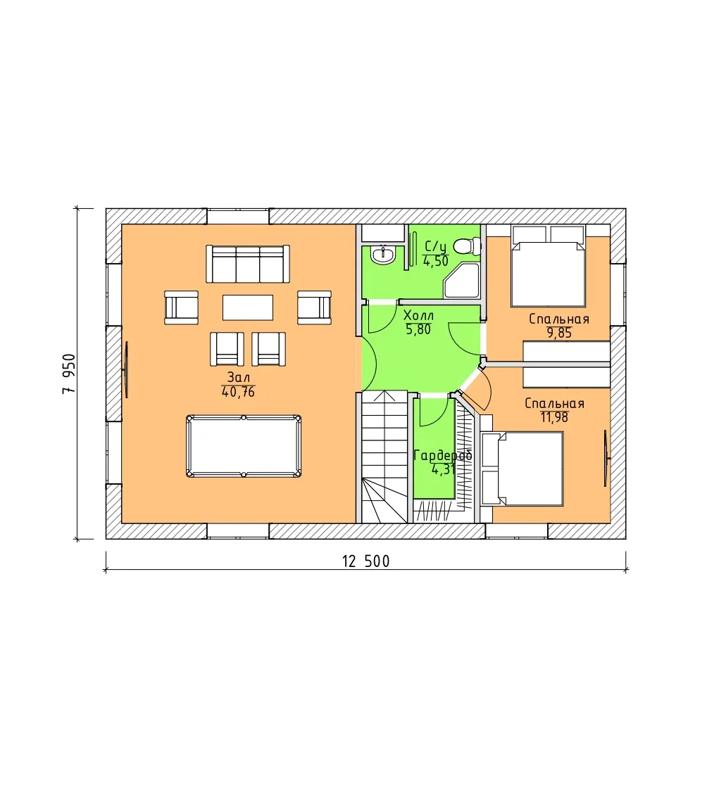
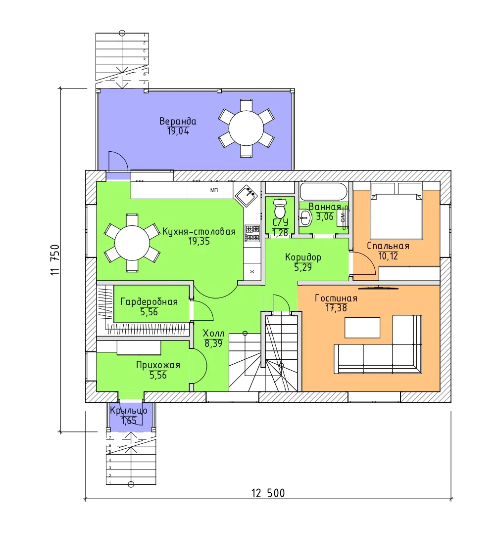
223.0 м²
1 / 3
🏠
223.0 м²
🛏
3 спален
🚿
2 санузл.
🧱
Газобетонный блок/керамический блок/кирпич
Похожие проекты
Похожие по цене
Похожие по площади
Проект O-358-1K
3 этаж
от 27 839 000 ₽
→
Проект M-185-1D
2 этаж
от 27 817 500 ₽
→
Проект «Gothenburg»
4 спальн. · 4 санузл. · 1 этаж
от 27 800 000 ₽
→
Проект одноэтажного каркасного дома "Чери2"
5 спальн. · 2 этаж
от 16 708 527 ₽
→
Дом 3 спальни второй свет №348
2 этаж
от 10 099 940 ₽
→
Проект 3 спальни второй свет №348
2 этаж
от 10 099 940 ₽
→
На сайт застройщика