Перейти к контенту
Подбор и сравнение проектов домов от застройщиков Московской области
Подборщик домов
Калькулятор сметы
Калькулятор площади
Форум
Блог
Главная
›
Каталог проектов
›
Дом по проекту «ЗС 408-18» - Золотое Сечение
Дом по проекту «ЗС 408-18» - Золотое Сечение
Застройщик: Золотое Сечение
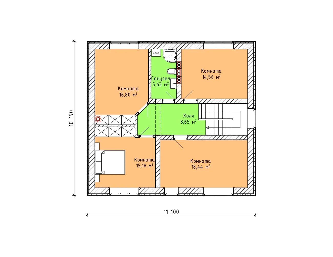
224.0 м²
1 / 3
🏠
224.0 м²
🛏
5 спален
🚿
3 санузл.
🧱
Газобетонный блок/керамический блок/кирпич
Похожие проекты
Похожие по цене
Похожие по площади
Дом по проекту «ЗС 27-24» - Золотое Сечение
5 спальн. · 2 санузл.
от 28 000 000 ₽
→
Проект одноэтажного каркасного дома "Титан"
5 спальн. · 2 этаж
от 27 988 030 ₽
→
Проект O-356-1K
3 этаж
от 28 019 400 ₽
→
Проект дома №375
2 этаж
от 13 952 500 ₽
→
Дом по проекту «ЗС 27-24» - Золотое Сечение
5 спальн. · 2 санузл.
от 28 000 000 ₽
→
Проект V-224-1P
2 этаж
от 15 693 300 ₽
→
На сайт застройщика