Перейти к контенту
Подбор и сравнение проектов домов от застройщиков Московской области
Подборщик домов
Калькулятор сметы
Калькулятор площади
Форум
Блог
Главная
›
Каталог проектов
›
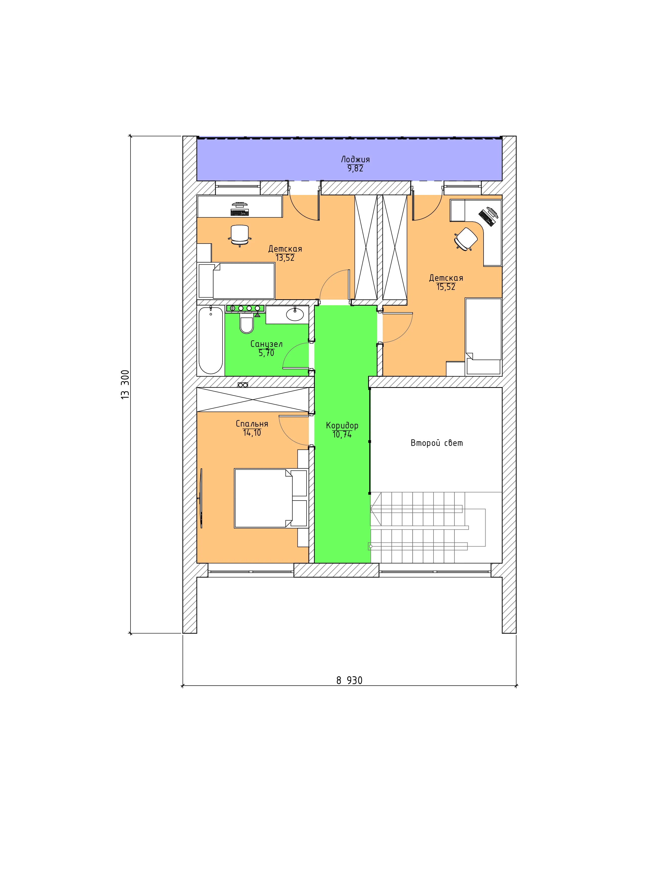
Дом по проекту «ЗС 523-23» - Золотое Сечение
Дом по проекту «ЗС 523-23» - Золотое Сечение
Застройщик: Золотое Сечение
161.0 м²
1 / 3
🏠
161.0 м²
🛏
3 спален
🚿
2 санузл.
🧱
Газобетонный блок/керамический блок/кирпич
Похожие проекты
Похожие по цене
Похожие по площади
Дом по проекту «ЗС 237-24» - Золотое Сечение
3 спальн. · 3 санузл.
от 20 125 000 ₽
→
Дом по проекту «ЗС 925-21» - Золотое Сечение
3 спальн. · 2 санузл.
от 20 125 000 ₽
→
Проект дома из керамоблоков 20х16 ТКБ-344: цена 11823000 руб.
4 спальн. · 2 санузл. · 2 этаж
от 20 088 000 ₽
→
Проект одноэтажного дома "Вознесенское" из бруса
3 спальн. · 2 этаж
от 14 334 912 ₽
→
Проект одноэтажного дома "Зеленогорский" из бруса
3 спальн. · 2 этаж
от 14 018 330 ₽
→
Проект одноэтажного дома "Изабелла" из бруса
4 спальн. · 2 этаж
от 11 585 748 ₽
→
На сайт застройщика