Перейти к контенту
Подбор и сравнение проектов домов от застройщиков Московской области
Подборщик домов
Калькулятор сметы
Калькулятор площади
Форум
Блог
Главная
›
Каталог проектов
›
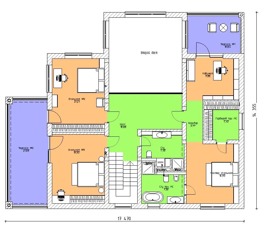
Дом по проекту «ЗС 557-21-2» - Золотое Сечение
Дом по проекту «ЗС 557-21-2» - Золотое Сечение
Застройщик: Золотое Сечение
364.0 м²
1 / 3
🏠
364.0 м²
🛏
4 спален
🚿
4 санузл.
🧱
Газобетонный блок/керамический блок/кирпич
Похожие проекты
Похожие по цене
Похожие по площади
Проект «Nottingham»
7 спальн. · 7 санузл. · 2 этаж
от 45 500 000 ₽
→
Проект дома U-650-1P
3 этаж
от 45 500 000 ₽
→
Проект «Devine»
4 спальн. · 5 санузл. · 1 этаж
от 45 415 000 ₽
→
Проект U-364-1P
3 этаж
от 25 480 000 ₽
→
Проект A-323-1K
3 этаж
от 29 825 860 ₽
→
Проект одноэтажного дома "Анталия" из бруса
1 спальн. · 2 этаж
от 5 109 210 ₽
→
На сайт застройщика