Перейти к контенту
Подбор и сравнение проектов домов от застройщиков Московской области
Подборщик домов
Калькулятор сметы
Калькулятор площади
Форум
Блог
Главная
›
Каталог проектов
›
Дом по проекту «ЗС 785-20» - Золотое Сечение
Дом по проекту «ЗС 785-20» - Золотое Сечение
Застройщик: Золотое Сечение
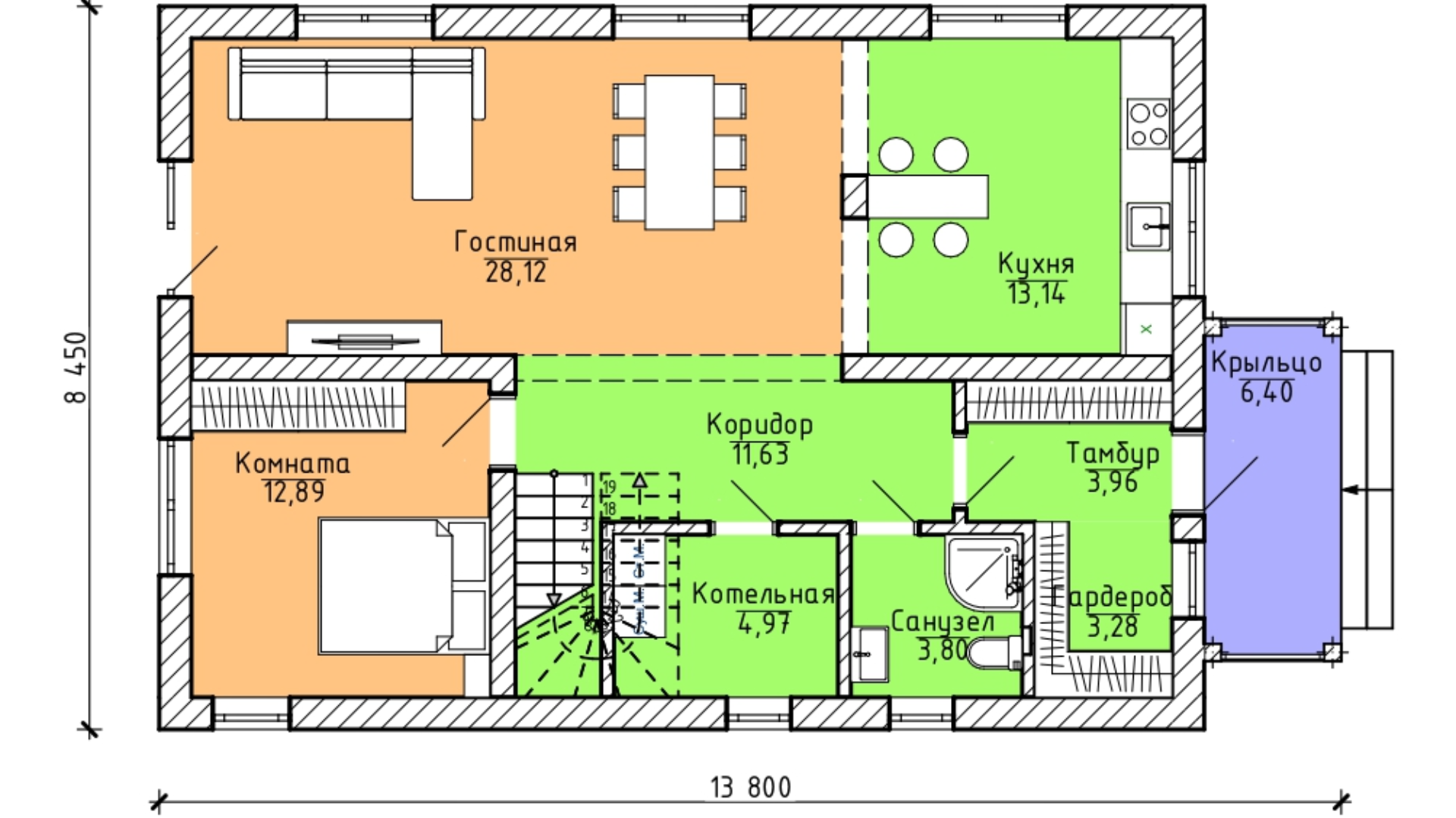
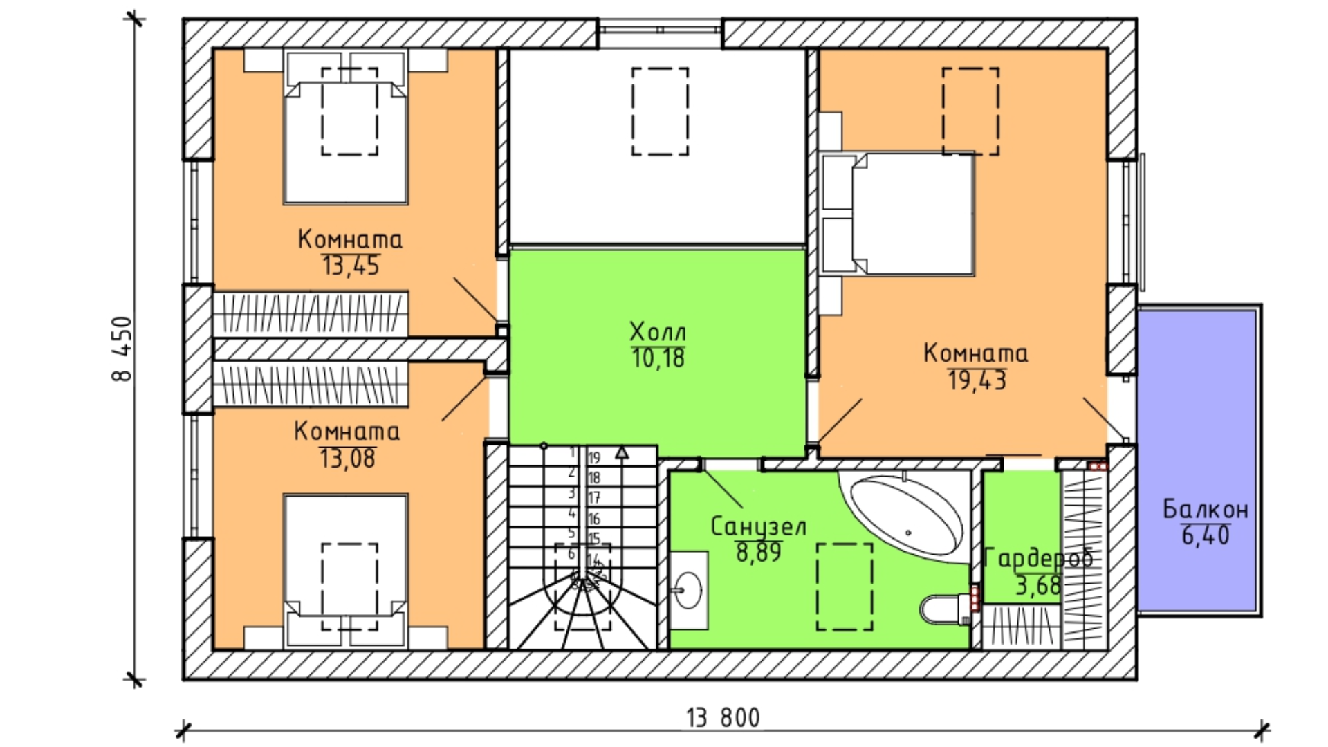
163.0 м²
1 / 3
🏠
163.0 м²
🛏
4 спален
🚿
2 санузл.
🧱
Газобетонный блок/Керамический блок/Кирпич
Похожие проекты
Похожие по цене
Похожие по площади
Дом по проекту «ЗС 19-17-2» - Золотое Сечение
3 спальн. · 2 санузл.
от 20 375 000 ₽
→
Дом по проекту «ЗС 238-24» - Золотое Сечение
3 спальн. · 3 санузл.
от 20 375 000 ₽
→
Дом по проекту «ЗС 968-22» - Золотое Сечение
3 спальн. · 2 санузл.
от 20 375 000 ₽
→
Дом из кирпича Проект КД-2
3 спальн. · 2 санузл. · 2 этаж
от 420 000 ₽
→
Дом по проекту «ЗС 19-17-2» - Золотое Сечение
3 спальн. · 2 санузл.
от 20 375 000 ₽
→
Дом по проекту «ЗС 238-24» - Золотое Сечение
3 спальн. · 3 санузл.
от 20 375 000 ₽
→
На сайт застройщика