Перейти к контенту
Подбор и сравнение проектов домов от застройщиков Московской области
Подборщик домов
Калькулятор сметы
Калькулятор площади
Форум
Блог
Главная
›
Каталог проектов
›
Дом по проекту «ЗС 852-20» - Золотое Сечение
Дом по проекту «ЗС 852-20» - Золотое Сечение
Застройщик: Золотое Сечение
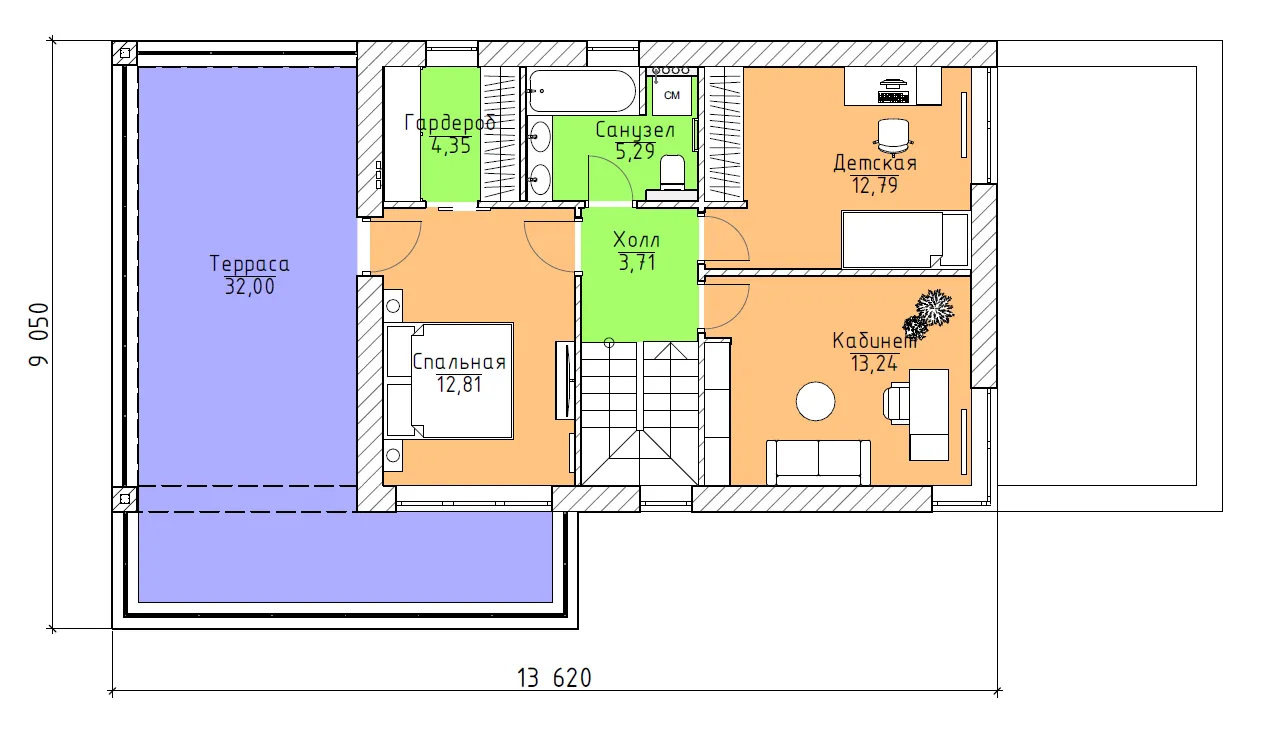
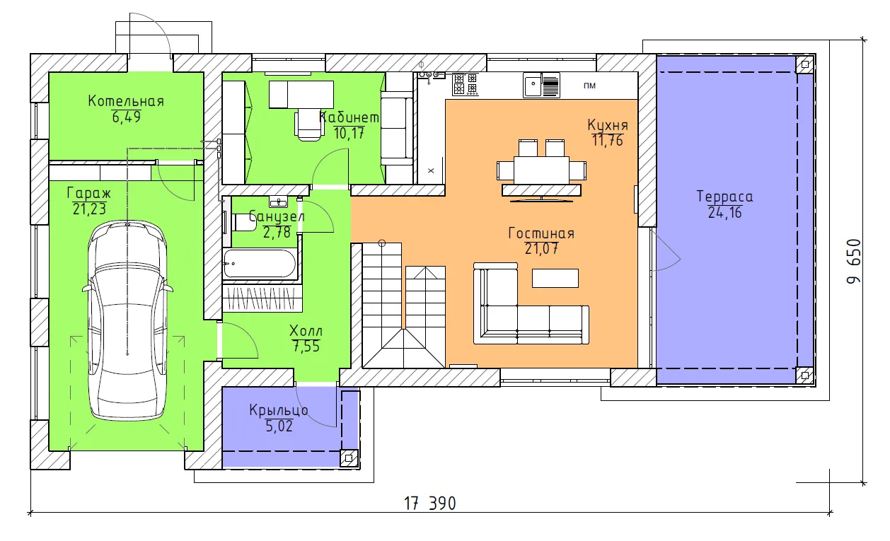
194.0 м²
1 / 3
🏠
194.0 м²
🛏
2 спален
🚿
2 санузл.
🧱
Газобетонный блок/Керамический блок/Кирпич
Похожие проекты
Похожие по цене
Похожие по площади
Дом по проекту «ЗС 922-21» - Золотое Сечение
4 спальн. · 2 санузл.
от 24 250 000 ₽
→
Проект F-296-1K
3 этаж
от 24 263 800 ₽
→
Проект U-296-1K
2 этаж
от 24 274 460 ₽
→
Проект двухэтажного дома "Ирина" из бруса
7 спальн. · 2 этаж
от 13 440 607 ₽
→
Проект одноэтажного дома "Митино" из бруса
4 спальн. · 2 этаж
от 12 883 382 ₽
→
Проект одноэтажного коттеджа "Родные пенаты" из газобетона
4 спальн. · 2 этаж
от 11 639 000 ₽
→
На сайт застройщика