Перейти к контенту
Подбор и сравнение проектов домов от застройщиков Московской области
Подборщик домов
Калькулятор сметы
Калькулятор площади
Форум
Блог
Главная
›
Каталог проектов
›
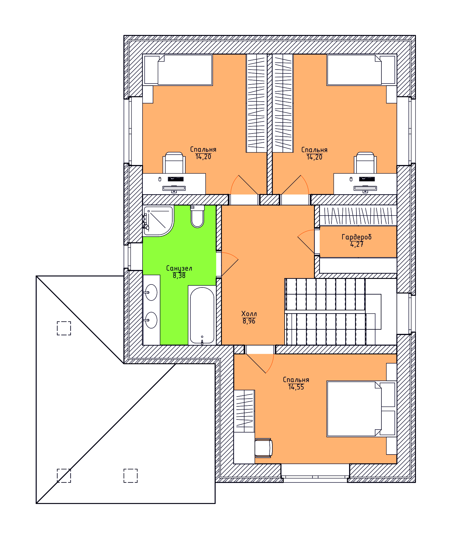
Дом по проекту «ЗС 861-20» - Золотое Сечение
Дом по проекту «ЗС 861-20» - Золотое Сечение
Застройщик: Золотое Сечение
152.0 м²
1 / 3
🏠
152.0 м²
🛏
3 спален
🚿
2 санузл.
🧱
Газобетонный блок/Керамический блок/Кирпич
Похожие проекты
Похожие по цене
Похожие по площади
Дом по проекту «ЗС 134-22-1» - Золотое Сечение
2 спальн. · 2 санузл.
от 19 000 000 ₽
→
Дом по проекту «ЗС 204-17» - Золотое Сечение
2 спальн. · 2 санузл.
от 19 000 000 ₽
→
Современный дом с двухскатной крышей «Энкур»
4 спальн. · 3 санузл. · 3 этаж
от 19 002 000 ₽
→
Проект одноэтажного дома "Опалево-М4" из бруса
5 спальн. · 2 этаж
от 10 590 279 ₽
→
Проект одноэтажного дома "Энцелад" из бруса
4 спальн. · 2 этаж
от 11 116 870 ₽
→
Дом по проекту «ЗС 134-22-1» - Золотое Сечение
2 спальн. · 2 санузл.
от 19 000 000 ₽
→
На сайт застройщика