Перейти к контенту
Подбор и сравнение проектов домов от застройщиков Московской области
Подборщик домов
Калькулятор сметы
Калькулятор площади
Форум
Блог
Главная
›
Каталог проектов
›
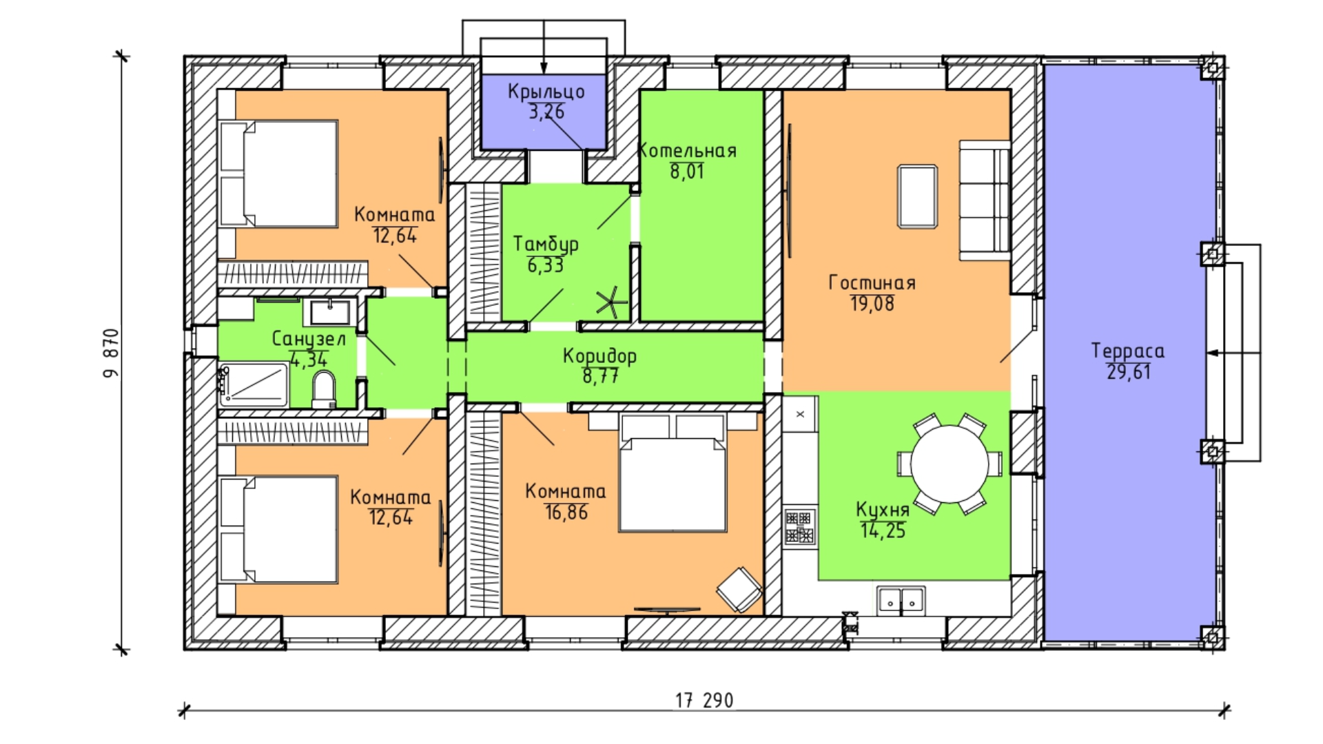
Дом по проекту «ЗС 920-21» - Золотое Сечение
Дом по проекту «ЗС 920-21» - Золотое Сечение
Застройщик: Золотое Сечение
136.0 м²
1 / 2
🏠
136.0 м²
🛏
3 спален
🚿
1 санузл.
🧱
Газобетонный блок/Керамический блок/Кирпич
Похожие проекты
Похожие по цене
Похожие по площади
Дом по проекту «ЗС 139-14» - Золотое Сечение
3 спальн. · 2 санузл.
от 17 000 000 ₽
→
Дом по проекту «ЗС 400-19-2» - Золотое Сечение
3 спальн. · 2 санузл.
от 17 000 000 ₽
→
АС-4
6 спальн. · 1 этаж
от 16 990 000 ₽
→
Проект одноэтажного дома "Богородский" из бруса
2 спальн. · 2 этаж
от 8 260 996 ₽
→
Строительство каркасного дома 10х9 "Канцлер" под ключ
6 спальн. · 2 санузл. · 2 этаж
от 5 174 000 ₽
→
Дом по проекту «ЗС 139-14» - Золотое Сечение
3 спальн. · 2 санузл.
от 17 000 000 ₽
→
На сайт застройщика