Перейти к контенту
Подбор и сравнение проектов домов от застройщиков Московской области
Подборщик домов
Калькулятор сметы
Калькулятор площади
Форум
Блог
Главная
›
Каталог проектов
›
Дом по проекту «ЗС 923-21» - Золотое Сечение
Дом по проекту «ЗС 923-21» - Золотое Сечение
Застройщик: Золотое Сечение
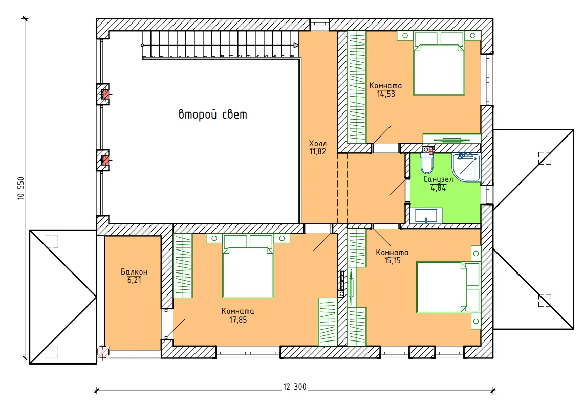
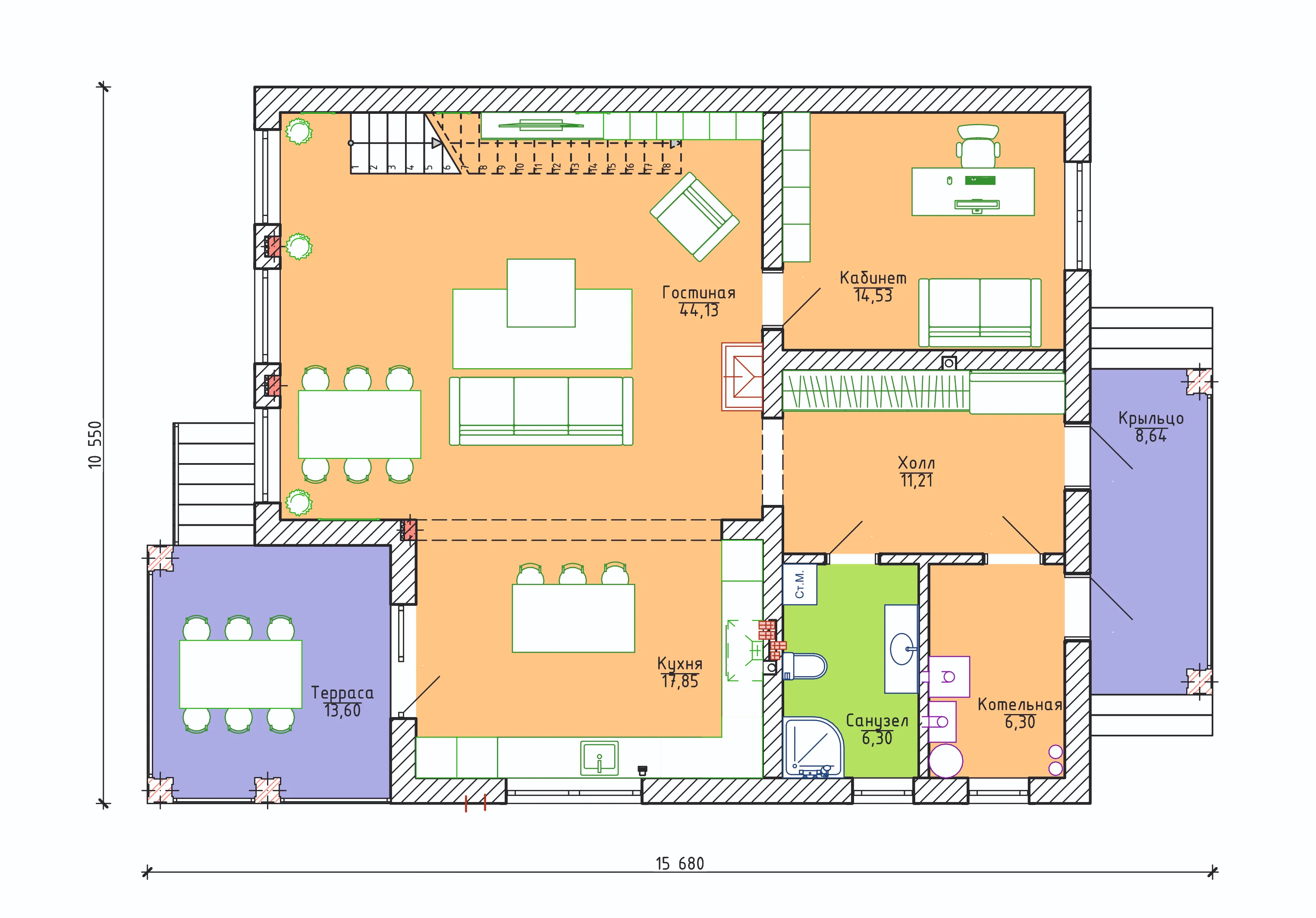
193.0 м²
1 / 3
🏠
193.0 м²
🛏
3 спален
🚿
2 санузл.
🧱
Газобетонный блок/керамический блок/кирпич
Похожие проекты
Похожие по цене
Похожие по площади
Проект I-294-1K
2 этаж
от 24 108 820 ₽
→
Проект N-293-1K
2 этаж
от 24 091 600 ₽
→
Проект U-234-1K
3 этаж
от 24 161 300 ₽
→
Каркасный дом 10x19 Проект "Гидденит"
3 спальн. · 1 санузл. · 1 этаж
от 4 673 000 ₽
→
Проект двухэтажного коттеджа "Флуэри" из газобетона
3 спальн. · 2 этаж
от 8 329 000 ₽
→
Проект V-193-1P
3 этаж
от 13 521 200 ₽
→
На сайт застройщика