Перейти к контенту
Подбор и сравнение проектов домов от застройщиков Московской области
Подборщик домов
Калькулятор сметы
Калькулятор площади
Форум
Блог
Главная
›
Каталог проектов
›
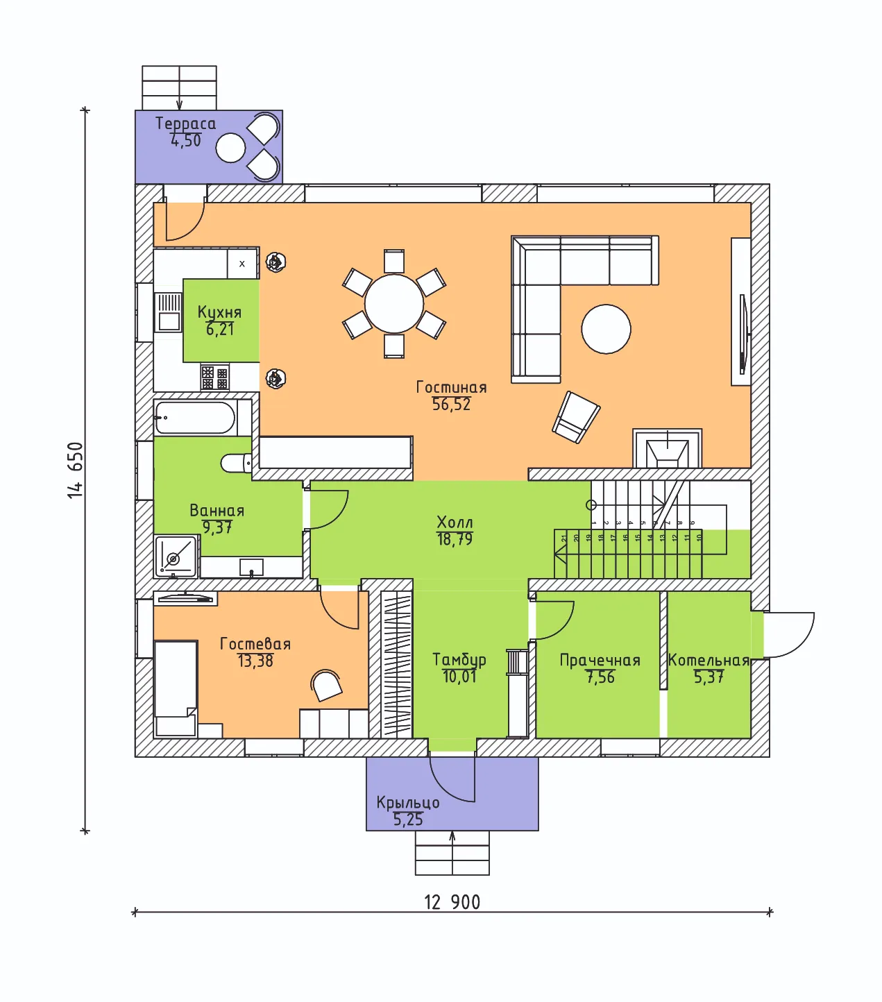
Дом по проекту «ЗС 93-18» - Золотое Сечение
Дом по проекту «ЗС 93-18» - Золотое Сечение
Застройщик: Золотое Сечение
252.0 м²
1 / 3
🏠
252.0 м²
🛏
5 спален
🚿
3 санузл.
🧱
Газобетонный блок/Керамический блок/Кирпич
Похожие проекты
Похожие по цене
Похожие по площади
Проект S-383-1K
3 этаж
от 31 463 400 ₽
→
Проект U-451-1P
3 этаж
от 31 585 400 ₽
→
Проект J-383-1K
2 этаж
от 31 406 000 ₽
→
Проект двухэтажного коттеджа "Свет-Елена" из газобетона
4 спальн. · 2 этаж
от 11 888 000 ₽
→
Дом 6 спален и с террасой №376
2 этаж
от 14 354 300 ₽
→
Проект дома №376
2 этаж
от 14 354 300 ₽
→
На сайт застройщика