Перейти к контенту
Подбор и сравнение проектов домов от застройщиков Московской области
Подборщик домов
Калькулятор сметы
Калькулятор площади
Форум
Блог
Главная
›
Каталог проектов
›
Дом по проекту «Кемптен» - Золотое Сечение
Дом по проекту «Кемптен» - Золотое Сечение
Застройщик: Золотое Сечение
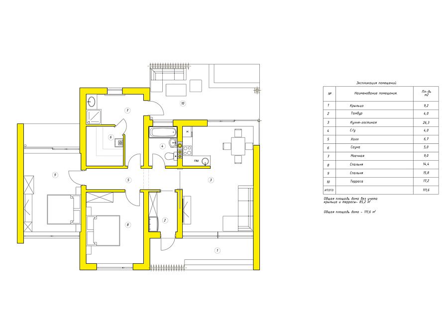
101.0 м²
1 / 2
🏠
101.0 м²
🛏
2 спален
🚿
1 санузл.
🧱
Газобетонный блок
Похожие проекты
Похожие по цене
Похожие по площади
Дом по проекту «Барнхаус» - Золотое Сечение
2 спальн. · 1 санузл.
от 12 625 000 ₽
→
Проект дома из газоблоков 17х17 ГББ-161: цена 10126000 руб.
3 спальн. · 2 санузл. · 1 этаж
от 12 621 000 ₽
→
Проект двухэтажного каркасного дома "Мальта"
2 этаж
от 12 618 679 ₽
→
Проект одноэтажного дома "Скандик-2" из бруса
4 спальн. · 2 этаж
от 7 048 207 ₽
→
Строительство каркасного дома 8,6х8,1 "Гермес" под ключ
5 спальн. · 2 санузл. · 2 этаж
от 4 815 000 ₽
→
Дом по проекту «Барнхаус» - Золотое Сечение
2 спальн. · 1 санузл.
от 12 625 000 ₽
→
На сайт застройщика