Перейти к контенту
Подбор и сравнение проектов домов от застройщиков Московской области
Подборщик домов
Калькулятор сметы
Калькулятор площади
Форум
Блог
Главная
›
Каталог проектов
›
Дом по проекту «Райнсберг» - Золотое Сечение
Дом по проекту «Райнсберг» - Золотое Сечение
Застройщик: Золотое Сечение
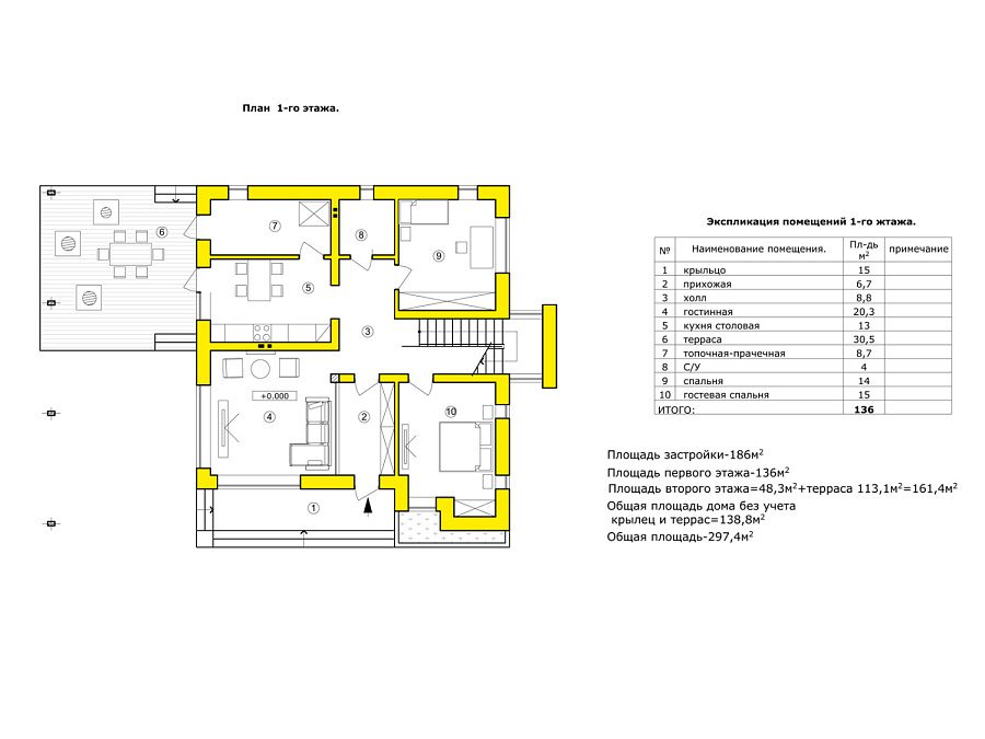
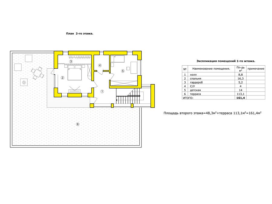
298.0 м²
1 / 3
🏠
298.0 м²
🛏
4 спален
🚿
2 санузл.
🧱
Газобетонный блок
Похожие проекты
Похожие по цене
Похожие по площади
Проект U-453-1K
3 этаж
от 37 218 160 ₽
→
Проект W-443-1K
3 этаж
от 37 211 600 ₽
→
Проект R-455-1K
3 этаж
от 37 310 000 ₽
→
Дом из газобетонных блоков С-298 ГБ «Орион»
4 спальн. · 4 санузл. · 2 этаж
от 11 813 000 ₽
→
Дом из керамических блоков С-298 КЕ «Орион»
4 спальн. · 4 санузл. · 2 этаж
от 11 813 000 ₽
→
Кирпичный дом С-298 К «Орион»
4 спальн. · 4 санузл. · 2 этаж
от 12 557 000 ₽
→
На сайт застройщика