Перейти к контенту
Подбор и сравнение проектов домов от застройщиков Московской области
Подборщик домов
Калькулятор сметы
Калькулятор площади
Форум
Блог
Главная
›
Каталог проектов
›
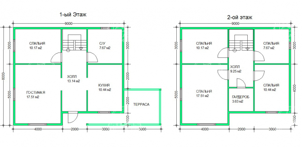
Каркасный дом 12x8 Проект "Александрин"
Каркасный дом 12x8 Проект "Александрин"
Застройщик: Каркасные дома RU
148.0 м²
1 / 2
🏠
148.0 м²
🚿
1 санузл.
📐
2 этаж
🧱
Каркас
Похожие проекты
Похожие по цене
Похожие по площади
Каркасный дом 10x13 Проект "Демантоид"
2 спальн. · 1 санузл. · 1 этаж
от 2 856 000 ₽
→
ПД - 108 - Строительство домов из Каркаса, СИП, Бруса под ключ
5 спальн. · 1 санузл. · 2 этаж
от 2 860 000 ₽
→
Дом «Давыдов» 7,5х9 м
2 спальн. · 1 этаж
от 2 850 000 ₽
→
Проект двухэтажного каркасного дома "Титания"
3 спальн. · 2 этаж
от 10 744 165 ₽
→
Проект одноэтажного каркасного дома "Офелия2"
4 спальн. · 2 этаж
от 10 972 764 ₽
→
Дом по проекту «ЗС 968-21» - Золотое Сечение
3 спальн. · 2 санузл.
от 18 500 000 ₽
→
На сайт застройщика