Перейти к контенту
Подбор и сравнение проектов домов от застройщиков Московской области
Подборщик домов
Калькулятор сметы
Калькулятор площади
Форум
Блог
Главная
›
Каталог проектов
›
Каркасный дом 7x13 Проект "Данбурит"
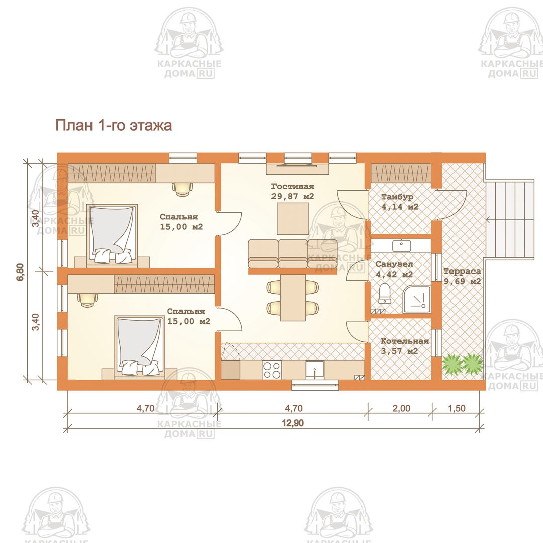
Каркасный дом 7x13 Проект "Данбурит"
Застройщик: Каркасные дома RU
87.7 м²
1 / 2
🏠
87.7 м²
🛏
2 спален
🚿
1 санузл.
📐
1 этаж
🧱
Каркас
Похожие проекты
Похожие по цене
Похожие по площади
ПД - 136 - Строительство домов из Каркаса, СИП, Бруса под ключ
3 спальн. · 2 санузл. · 2 этаж
от 3 150 000 ₽
→
Олимп-2
3 спальн. · 1 санузл. · 2 этаж
от 3 139 800 ₽
→
Проект G-160-1S
2 этаж
от 3 155 743 ₽
→
Проект дома P-087-1P
2 этаж
от 6 139 000 ₽
→
Проект U-088-1P
2 этаж
от 6 142 500 ₽
→
Проект M-088-1D
1 этаж
от 13 165 500 ₽
→
На сайт застройщика