Перейти к контенту
Подбор и сравнение проектов домов от застройщиков Московской области
Подборщик домов
Калькулятор сметы
Калькулятор площади
Форум
Блог
Главная
›
Каталог проектов
›
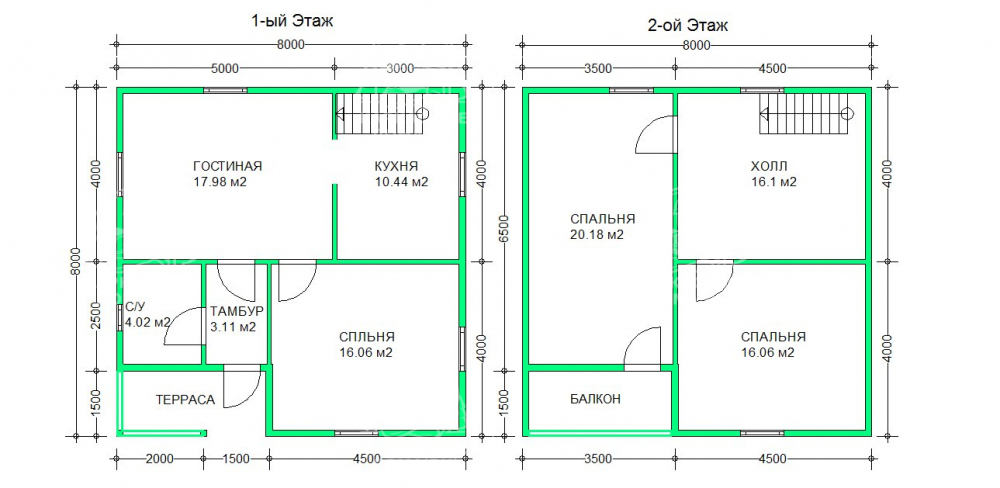
Каркасный дом 8x8 Проект "Родолит"
Каркасный дом 8x8 Проект "Родолит"
Застройщик: Каркасные дома RU
128.0 м²
1 / 2
🏠
128.0 м²
🛏
3 спален
🚿
1 санузл.
📐
2 этаж
🧱
Каркас
Похожие проекты
Похожие по цене
Похожие по площади
Феникс 1
2 спальн. · 1 санузл. · 2 этаж
от 2 759 800 ₽
→
Каркасный дом 8x8 Проект "Гелиодор"
1 санузл. · 2 этаж
от 2 750 000 ₽
→
ПД - 96-2 - Строительство домов из Каркаса, СИП, Бруса под ключ
3 спальн. · 1 санузл. · 1 этаж
от 2 750 000 ₽
→
Проект двухэтажного дома "Уголок 9х10" из бруса
2 этаж
от 7 865 125 ₽
→
Проект одноэтажного дома "Красная Шапочка" из бруса
4 спальн. · 2 этаж
от 10 782 259 ₽
→
Каркасный дом «Сертолово
от 6 840 000 ₽
→
На сайт застройщика