Перейти к контенту
Подбор и сравнение проектов домов от застройщиков Московской области
Подборщик домов
Калькулятор сметы
Калькулятор площади
Форум
Блог
Главная
›
Каталог проектов
›
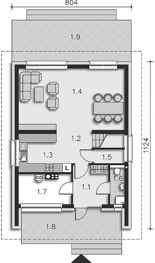
Проект К-105 11 на 8, площадью 181 за 6 009 000 руб
Проект К-105 11 на 8, площадью 181 за 6 009 000 руб
Застройщик: КаркасСтрой
181.0 м²
1 / 3
🏠
181.0 м²
🛏
3 спален
📐
2 этаж
🧱
Каркас
Похожие проекты
Похожие по цене
Похожие по площади
Проект К-50 14 на 7, площадью 181 за 6 136 500 руб
3 спальн. · 2 этаж
от 5 068 000 ₽
→
Уэльс 23
2 санузл. · 2 этаж
от 5 069 800 ₽
→
Проект каркасного дома КП-75
1 этаж
от 5 065 000 ₽
→
Проект двухэтажного каркасного дома "Ненси"
4 спальн. · 2 этаж
от 13 487 356 ₽
→
Проект одноэтажного каркасного дома "Премиум"
4 спальн. · 2 этаж
от 13 366 822 ₽
→
Проект одноэтажного коттеджа "Донна" из газобетона
4 спальн. · 2 этаж
от 10 262 000 ₽
→
На сайт застройщика