Перейти к контенту
Подбор и сравнение проектов домов от застройщиков Московской области
Подборщик домов
Калькулятор сметы
Калькулятор площади
Форум
Блог
Главная
›
Каталог проектов
›
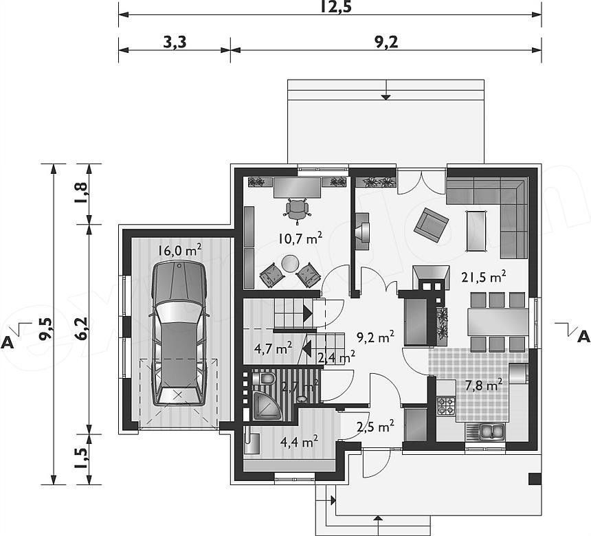
Проект К-111 10 на 13, площадью 238 за 8 083 500 руб
Проект К-111 10 на 13, площадью 238 за 8 083 500 руб
Застройщик: КаркасСтрой
238.0 м²
1 / 3
🏠
238.0 м²
🛏
6 спален
📐
2 этаж
🧱
Каркас
Похожие проекты
Похожие по цене
Похожие по площади
Проект К-228 9 на 14, площадью 238 за 8 032 500 руб
5 спальн. · 2 этаж
от 6 664 000 ₽
→
Проект К-34 11 на 11, площадью 238 за 7 968 750 руб
4 спальн. · 2 этаж
от 6 664 000 ₽
→
Проект C-096-1P
2 этаж
от 6 664 000 ₽
→
Дом по проекту «ЗС 44-17» - Золотое Сечение
4 спальн. · 2 санузл.
от 29 750 000 ₽
→
Проект К-111 10 на 13, площадью 238 за 8 083 500 руб
6 спальн. · 2 этаж
от 8 083 500 ₽
→
Проект К-228 9 на 14, площадью 238 за 8 032 500 руб
5 спальн. · 2 этаж
от 8 032 500 ₽
→
На сайт застройщика