Перейти к контенту
Подбор и сравнение проектов домов от застройщиков Московской области
Подборщик домов
Калькулятор сметы
Калькулятор площади
Форум
Блог
Главная
›
Каталог проектов
›
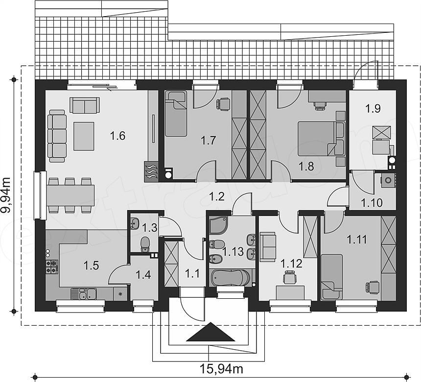
Проект К-146 16 на 10, площадью 158 за 6 306 000 руб
Проект К-146 16 на 10, площадью 158 за 6 306 000 руб
Застройщик: КаркасСтрой
158.0 м²
1 / 3
🏠
158.0 м²
🛏
4 спален
📐
1 этаж
🧱
Каркас
Похожие проекты
Похожие по цене
Похожие по площади
Каркасный дом “Авангард”
5 спальн. · 2 этаж
от 4 425 400 ₽
→
Каркасный дом 12.9x10.4 Проект "Азурит"
2 спальн. · 1 санузл. · 2 этаж
от 4 422 000 ₽
→
Каркасный дом С-93 КР «Атлас»
2 спальн. · 1 санузл. · 2 этаж
от 4 427 000 ₽
→
Проект одноэтажного каркасного дома "Пилигрим"
5 спальн. · 2 этаж
от 11 887 161 ₽
→
Проект одноэтажного дома с террасой Flat-02-158 м² — Домострой
4 спальн. · 2 санузл. · 1 этаж
от 14 167 870 ₽
→
Дом по проекту «ЗС 795-20» - Золотое Сечение
4 спальн. · 2 санузл.
от 19 750 000 ₽
→
На сайт застройщика