Перейти к контенту
Подбор и сравнение проектов домов от застройщиков Московской области
Подборщик домов
Калькулятор сметы
Калькулятор площади
Форум
Блог
Главная
›
Каталог проектов
›
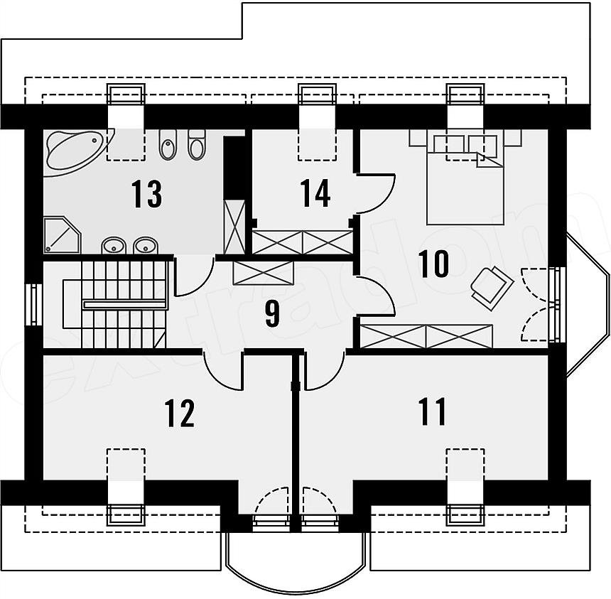
Проект К-202 9 на 9, площадью 162 за 5 406 750 руб
Проект К-202 9 на 9, площадью 162 за 5 406 750 руб
Застройщик: КаркасСтрой
162.0 м²
1 / 3
🏠
162.0 м²
🛏
4 спален
📐
2 этаж
🧱
Каркас
Похожие проекты
Похожие по цене
Похожие по площади
Проект К-174 9 на 9, площадью 162 за 5 406 750 руб
5 спальн. · 2 этаж
от 4 536 000 ₽
→
Проект К-177 9 на 9, площадью 162 за 5 406 750 руб
4 спальн. · 2 этаж
от 4 536 000 ₽
→
Проект К-182 9 на 9, площадью 162 за 5 406 750 руб
4 спальн. · 2 этаж
от 4 536 000 ₽
→
Проект одноэтажного дома "Валентин и Валентина" из бруса
3 спальн. · 2 этаж
от 13 164 715 ₽
→
Проект одноэтажного дома "Голованово-3" из бруса
5 спальн. · 2 этаж
от 13 320 434 ₽
→
Проект одноэтажного каркасного дома "Брэнд"
5 спальн. · 2 этаж
от 12 024 321 ₽
→
На сайт застройщика