Перейти к контенту
Подбор и сравнение проектов домов от застройщиков Московской области
Подборщик домов
Калькулятор сметы
Калькулятор площади
Форум
Блог
Главная
›
Каталог проектов
›
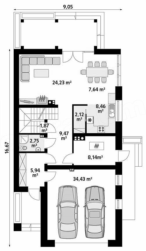
Проект К-203 9 на 17, площадью 302 за 10 104 750 руб
Проект К-203 9 на 17, площадью 302 за 10 104 750 руб
Застройщик: КаркасСтрой
302.0 м²
1 / 3
🏠
302.0 м²
🛏
4 спален
📐
2 этаж
🧱
Каркас
Похожие проекты
Похожие по цене
Похожие по площади
Проект одноэтажного коттеджа "Спортвилль" из газобетона
3 спальн. · 2 этаж
от 8 456 000 ₽
→
Проект дома I-119-1P
2 этаж
от 8 456 000 ₽
→
Проект каркасного дома КП-223
1 этаж
от 8 455 000 ₽
→
Дом по проекту «ЗС 401-18» - Золотое Сечение
2 спальн. · 4 санузл.
от 37 750 000 ₽
→
Проект К-203 9 на 17, площадью 302 за 10 104 750 руб
4 спальн. · 2 этаж
от 10 104 750 ₽
→
Проект V-302-1P
2 этаж
от 21 145 600 ₽
→
На сайт застройщика