Перейти к контенту
Подбор и сравнение проектов домов от застройщиков Московской области
Подборщик домов
Калькулятор сметы
Калькулятор площади
Форум
Блог
Главная
›
Каталог проектов
›
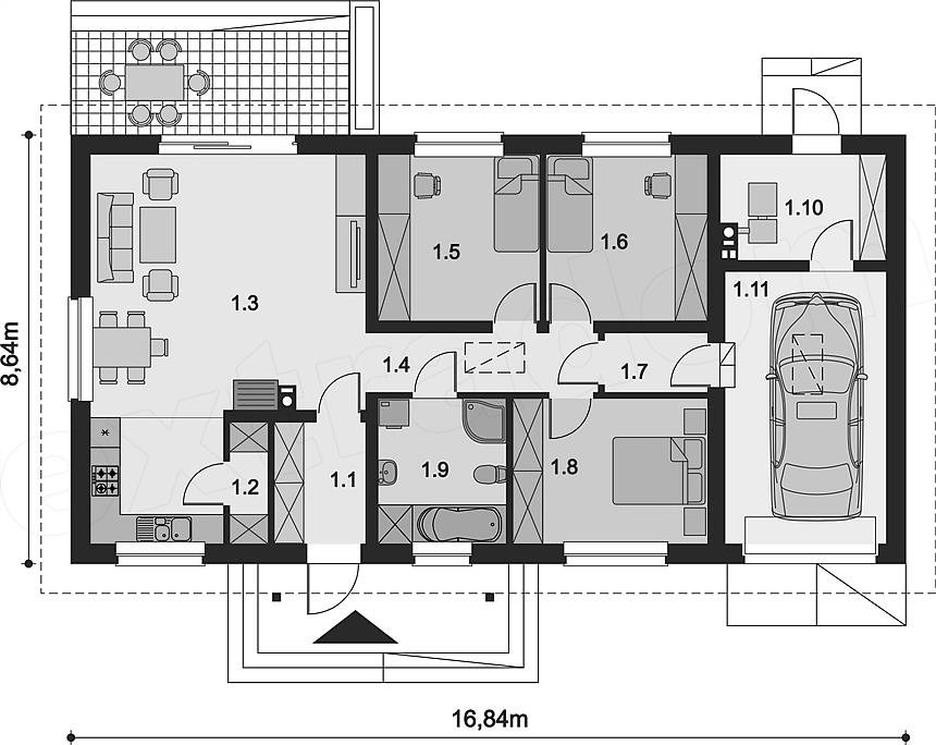
Проект К-59 17 на 9, площадью 145 за 5 865 750 руб
Проект К-59 17 на 9, площадью 145 за 5 865 750 руб
Застройщик: КаркасСтрой
145.0 м²
1 / 2
🏠
145.0 м²
🛏
3 спален
📐
1 этаж
🧱
Каркас
Похожие проекты
Похожие по цене
Похожие по площади
Проект К-33 11 на 7, площадью 145 за 4 896 750 руб
4 спальн. · 2 этаж
от 4 466 000 ₽
→
Акварель 2
3 спальн. · 1 санузл. · 1 этаж
от 4 466 000 ₽
→
Акварель 2
3 спальн. · 1 санузл. · 1 этаж
от 4 466 000 ₽
→
Проект одноэтажного дома "Ариель" из бруса
4 спальн. · 2 этаж
от 11 019 354 ₽
→
Проект одноэтажного каркасного дома "Добряк"
3 спальн. · 2 этаж
от 10 661 869 ₽
→
Проект одноэтажного каркасного дома "Ласточка-1"
4 спальн. · 2 этаж
от 10 474 002 ₽
→
На сайт застройщика