Перейти к контенту
Подбор и сравнение проектов домов от застройщиков Московской области
Подборщик домов
Калькулятор сметы
Калькулятор площади
Форум
Блог
Главная
›
Каталог проектов
›
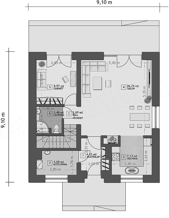
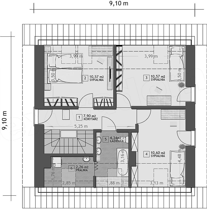
Проект К-62 9 на 9, площадью 166 за 5 514 750 руб
Проект К-62 9 на 9, площадью 166 за 5 514 750 руб
Застройщик: КаркасСтрой
166.0 м²
1 / 3
🏠
166.0 м²
🛏
4 спален
📐
2 этаж
🧱
Каркас
Похожие проекты
Похожие по цене
Похожие по площади
Проект К-116 8 на 10, площадью 166 за 5 502 000 руб
5 спальн. · 2 этаж
от 4 648 000 ₽
→
Строительство каркасного дома 11,5х8 "Коралл" под ключ
4 спальн. · 1 санузл. · 1 этаж
от 4 649 000 ₽
→
Строительство каркасного дома 11х8 "Крона" под ключ
5 спальн. · 2 санузл. · 2 этаж
от 4 650 000 ₽
→
Проект одноэтажного дома "Арабика" из бруса
3 спальн. · 2 этаж
от 9 985 675 ₽
→
Проект одноэтажного дома "Боярский" из бревна
2 спальн. · 2 этаж
от 8 945 355 ₽
→
Проект одноэтажного коттеджа "Красная шапочка КД" из газобетона
4 спальн. · 2 этаж
от 9 720 000 ₽
→
На сайт застройщика