Перейти к контенту
Подбор и сравнение проектов домов от застройщиков Московской области
Подборщик домов
Калькулятор сметы
Калькулятор площади
Форум
Блог
Главная
›
Каталог проектов
›
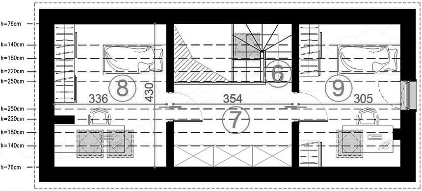
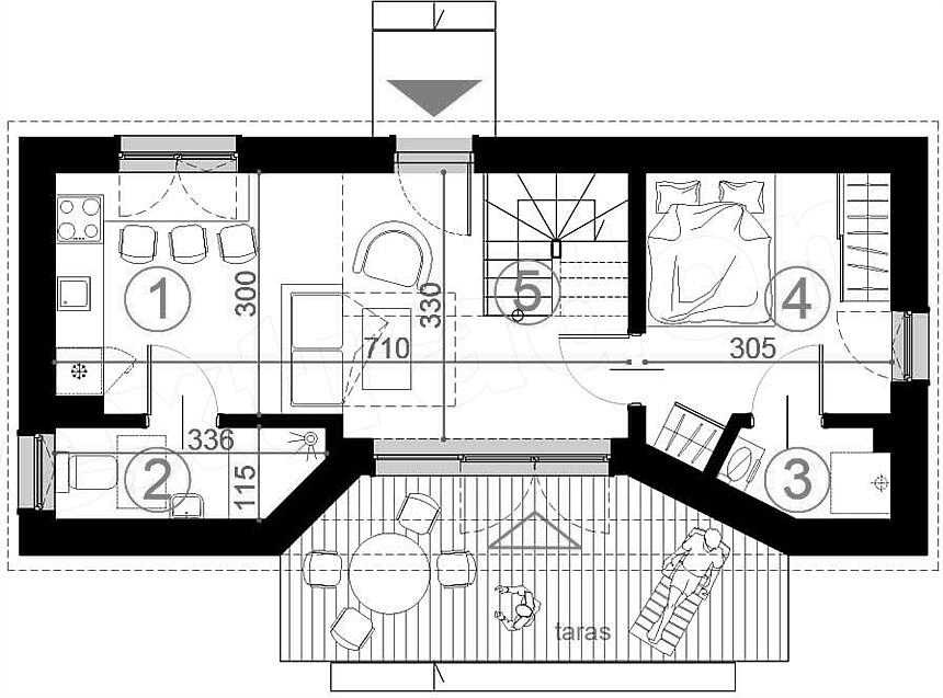
Проект К-8 10 на 4, площадью 84 за 2 778 000 руб
Проект К-8 10 на 4, площадью 84 за 2 778 000 руб
Застройщик: КаркасСтрой
84.0 м²
1 / 3
🏠
84.0 м²
🛏
3 спален
📐
2 этаж
🧱
Каркас
Похожие проекты
Похожие по цене
Похожие по площади
Проект двухэтажного коттеджа "Свеча-3" из газобетона
1 спальн. · 3 этаж
от 3 056 000 ₽
→
Проект К-66 11 на 7, площадью 77 за 3 060 750 руб
3 спальн. · 1 этаж
от 3 060 750 ₽
→
Дом из газобетона Проект ГБ-223
3 спальн. · 2 санузл. · 1 этаж
от 3 061 000 ₽
→
Каркасная баня «КБ-45
от 3 495 000 ₽
→
Каркасный дом "Баркас 84 м² " 2 этажа — г. Балашиха, мкр. Купавна, Московская область
2 этаж
от 2 160 000 ₽
→
Проект К-8 10 на 4, площадью 84 за 2 778 000 руб
3 спальн. · 2 этаж
от 2 778 000 ₽
→
На сайт застройщика