Перейти к контенту
Подбор и сравнение проектов домов от застройщиков Московской области
Подборщик домов
Калькулятор сметы
Калькулятор площади
Форум
Блог
Главная
›
Каталог проектов
›
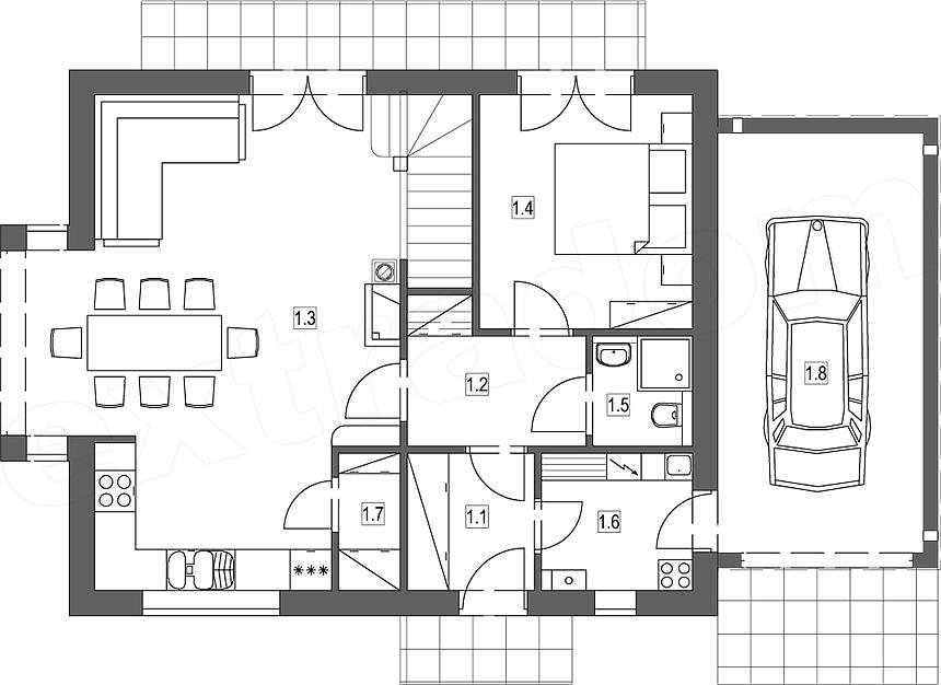
Проект К-80 11 на 6, площадью 137 за 4 540 500 руб
Проект К-80 11 на 6, площадью 137 за 4 540 500 руб
Застройщик: КаркасСтрой
137.0 м²
1 / 3
🏠
137.0 м²
🛏
4 спален
📐
2 этаж
🧱
Каркас
Похожие проекты
Похожие по цене
Похожие по площади
Каркасный дом «Лебяжье
от 4 220 000 ₽
→
Спутник 1 (7.3x8.6)
2 спальн. · 1 санузл. · 1 этаж
от 4 220 000 ₽
→
Строительство каркасного дома 10х6 "Тилбург" под ключ
5 спальн. · 1 санузл. · 2 этаж
от 4 223 000 ₽
→
Проект одноэтажного дома "Густав-2" из бруса
3 спальн. · 2 этаж
от 10 407 053 ₽
→
Проект одноэтажного коттеджа "Уютность" из газобетона
4 спальн. · 2 этаж
от 11 210 000 ₽
→
Аллебро 135
3 спальн. · 1 этаж
от 7 743 202 ₽
→
На сайт застройщика