Перейти к контенту
Подбор и сравнение проектов домов от застройщиков Московской области
Подборщик домов
Калькулятор сметы
Калькулятор площади
Форум
Блог
Главная
›
Каталог проектов
›
Проект каркасного дома КП-100
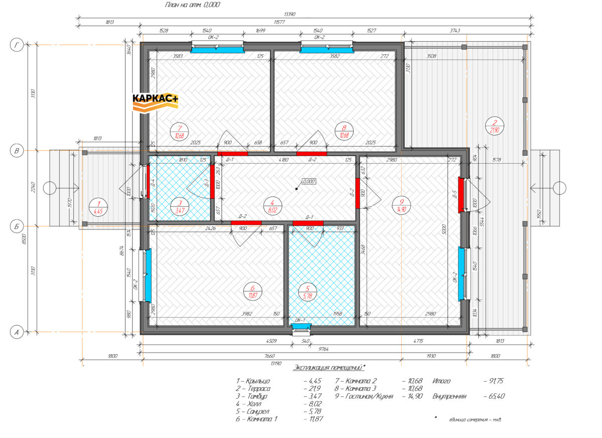
Проект каркасного дома КП-100
Застройщик: КАРКАС+
91.75 м²
1 / 2
🏠
91.75 м²
📐
1 этаж
🧱
Каркас
Похожие проекты
Похожие по цене
Похожие по площади
Проект одноэтажного дома "Вязьма" из бруса
2 спальн. · 1 этаж
от 5 805 832 ₽
→
Проект одноэтажного каркасного дома "Проксима"
2 спальн. · 2 этаж
от 5 806 421 ₽
→
Проект К-90 11 на 8, площадью 173 за 5 793 000 руб
4 спальн. · 2 этаж
от 5 793 000 ₽
→
Олимп-1
4 спальн. · 2 санузл. · 2 этаж
от 5 169 800 ₽
→
Каркасный дом 9x7 Проект "Авгит"
1 санузл. · 2 этаж
от 2 468 000 ₽
→
Дом «Морозов» 8х9 м
4 спальн. · 5 этаж
от 3 950 000 ₽
→
На сайт застройщика