Перейти к контенту
Подбор и сравнение проектов домов от застройщиков Московской области
Подборщик домов
Калькулятор сметы
Калькулятор площади
Форум
Блог
Главная
›
Каталог проектов
›
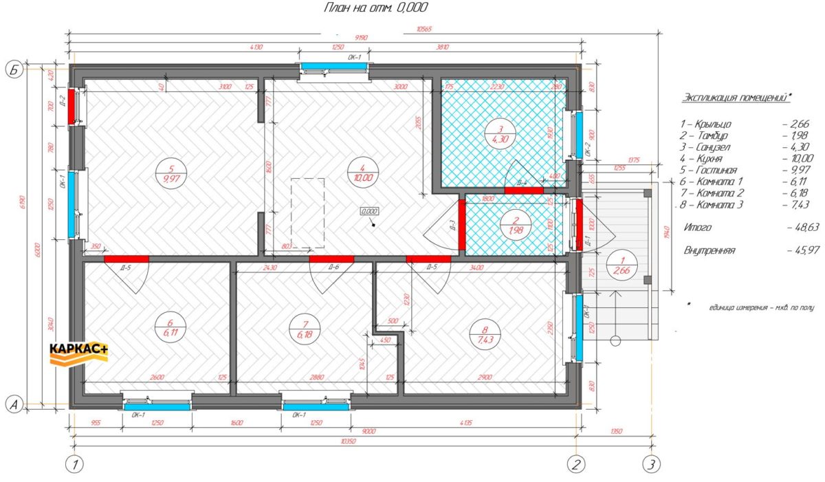
Проект каркасного дома КП-540
Проект каркасного дома КП-540
Застройщик: КАРКАС+
48.63 м²
1 / 2
🏠
48.63 м²
📐
1 этаж
🧱
Каркас
Похожие проекты
Похожие по цене
Похожие по площади
Сказка (8x8)
1 спальн. · 1 санузл. · 1 этаж
от 4 111 000 ₽
→
Проект L-060-1P
1 этаж
от 4 102 000 ₽
→
Проект P-059-1P
1 этаж
от 4 102 000 ₽
→
Проект N-048-1D
1 санузл. · 2 этаж
от 7 275 000 ₽
→
Витязь 4
3 спальн. · 1 санузл. · 1 этаж
от 2 042 000 ₽
→
Проект одноэтажного дома "Ключик 2" из бруса
1 спальн. · 2 этаж
от 5 395 079 ₽
→
На сайт застройщика