Перейти к контенту
Подбор и сравнение проектов домов от застройщиков Московской области
Подборщик домов
Калькулятор сметы
Калькулятор площади
Форум
Блог
Главная
›
Каталог проектов
›
Проект N-048-1D
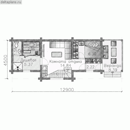
Проект N-048-1D
Застройщик: Юникс-Строй
48.5 м²
1 / 3
🏠
48.5 м²
🚿
1 санузл.
📐
2 этаж
🧱
Дерево
Похожие проекты
Похожие по цене
Похожие по площади
Проект К-227 15 на 9, площадью 260 за 8 741 250 руб
4 спальн. · 2 этаж
от 7 280 000 ₽
→
Кирпичный дом С-154 К «Гармония»
3 спальн. · 2 санузл. · 2 этаж
от 7 270 000 ₽
→
Проект дома R-104-1P
2 этаж
от 7 280 000 ₽
→
Витязь 4
3 спальн. · 1 санузл. · 1 этаж
от 2 042 000 ₽
→
Проект каркасного дома КП-540
1 этаж
от 4 110 000 ₽
→
Проект одноэтажного дома "Ключик 2" из бруса
1 спальн. · 2 этаж
от 5 395 079 ₽
→
На сайт застройщика